Kopfzeile

neu — 3-Zimmer Mietwohnung mit schöner Küche

Wohnung zur Miete in Wiener Neustadt (2700) / Objektnummer: 16731

Wohnung zur Miete in Wiener Neustadt (2700) 899,17 €

3 Zimmer

1 Badezimmer

66 m² Wohnfläche

3 m² Außenfläche

BalkonBadewanneStellplatzAußenstellplatzZentralheizungKellerflächeFliesenParkettKabel-TV

Gepflegte Mietwohnung mit Balkon

Diese toll geschnittene 3-Zimmer Wohnung in einem 2012 renoviertem Haus verfügt über eine großzügigen Wohn- Essbereich mit Küchenanschlüssen, ebenfalls gelangt man von hier aus auf den Balkon. 

Die Wohnung befindet sich im ersten Obergeschoss des Gebäudes und ist in einem sehr guten Zustand.

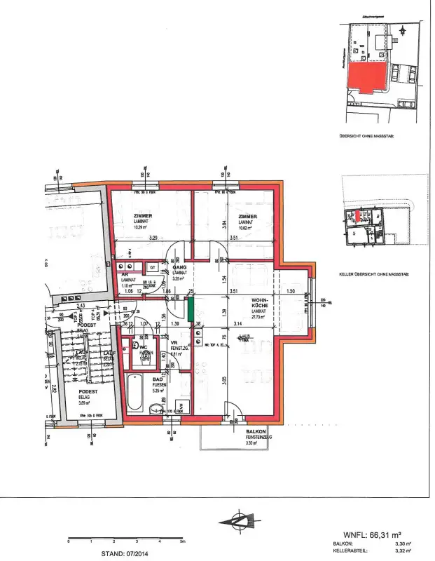
Raumaufteilung:                             

  • Vorraum (3,25 m²)
  • Wohnküche (27,73 m²)
  • Zimmer I (10,62 m²)
  • Zimmer II (10,29 m²)
  • Badezimmer mit Badwanne (5,25 m²)
  • separate Toilette und Abstellraum
  • Zusätzlich: Balkon, Kellerabteil

Die Wohnung wir mit einer Gaszentralheizung beheizt, die Fenster sind mit Außenjalousien ausgestattet. 

Die Wohnung ist ab sofort beziehbar. Detaillierte Unterlagen (Exposé) senden wir gerne auf Anfrage zu. 

Um Ihnen das Potenzial dieser Immobilie zu verdeutlichen, wurden einige Innenaufnahmen mittels KI neu gestaltet (Virtual Staging). Es handelt sich hierbei um Gestaltungsvorschläge.

Vereinbaren Sie noch heute Ihren persönlichen Besichtigungstermin und überzeugen Sie sich selbst von dieser tollen Wohnung!
 

IHRE IMMOBILIENTRÄUME - UNSER ZIEL

Die Angaben erfolgen aufgrund der Informationen und Unterlagen, welche uns vom Abgeber oder dessen Beauftragten zur Verfügung gestellt wurden und sind ohne Gewähr! Aufgrund der Nachweispflicht gegenüber dem Eigentümer können wir nur Anfragen mit vollständigen Namen, Telefonnummer und Adresse bearbeiten! 
3BMM Kaution

Wir weisen darauf hin, dass zwischen dem Vermittler und dem zu vermittelnden Dritten ein familiäres oder wirtschaftliches Naheverhältnis besteht.

Der Immobilienmakler erklärt, dass er – entgegen dem in der Immobilienwirtschaft üblichen Geschäftsgebrauch des Doppelmaklers – einseitig nur für den Vermieter tätig ist.

Ausstattung

Fliesen, Parkett, Gas, Zentralheizung, Bad mit Fenster, Badewanne, Kabel / Satelliten-TV, Parkplatz, Außenliegender Sonnenschutz, Toilette, Massiv, Stadtblick, Doppel- / Mehrfachverglasung, Kunststofffenster

Lage und Verkehrsanbindung

Nähe Eislaufplatz Wiener Neustadt, Nähe Merkur City

Grundriss

Lageplan

Inhalt wird geladen
Preise
Gesamtmiete
899,17 €
Nettomiete
643,65 €
Betriebskosten netto
173,77 €
Betriebskosten brutto
191,15 €
Betriebskosten brutto
173,77 €
Gesamtmiete USt.
81,75 €
Parkplatz Kosten brutto
60,00 €
Preisinfos
Mietvertragserstellung Hausverwaltung: € 450,-- inkl. Ust Kaution Küche: € 1.500,--
Kaution, Details
3 Bruttomonatsmieten
Provision
Gemäß Erstauftraggeberprinzip bezahlt der Abgeber die Provision.
Fakten
Objekttyp
Wohnung
Wohnfläche
66 m²
Balkonfläche
3 m²
Kellerfläche
3 m²
Toiletten
1
Balkone
1
Stockwerk
1. Etage
Baujahr
1961
Letzte Sanierung
2012
Gebäude
Neubau
Zustand
gepflegt
Status
verfügbar
Energieeffizienz
Energieausweisart
Energiebedarfsausweis
HWB
45,00 kWh/(m²a)
HWB-Klasse
B
Gültig bis
16.09.2023
Thomas Breimaier

realbrokers Dienstleistungs GmbH & Co KG

Thomas Breimaier

Selbständiger Kooperationspartner

Virtuelle Tour