Doppelhaushälften in Zagersdorf - MIETE MIT KAUFOPTION

Lage: 7012 Zagersdorf | Burgenland

Beschreibung

Doppelhaushälften in Zagersdorf - MIETE MIT KAUFOPTION 

 

In Zagersdorf, Bezirk Eisenstadt/Umgebung, wurden drei exklusive Doppelhäuser errichtet. Entworfen von dem Architekturbüro LOSTINARCHITECTURE, verkörpern diese Häuser ein harmonisches Zusammenspiel aus moderner Ästhetik und höchster Wohnqualität. Die klare Linienführung und die Verwendung hochwertiger Materialien verleihen den Häusern einen zeitlosen Charme, der sich perfekt in das bestehende Ortsbild einfügt.

Die Häuser werden erstmalig in Kooperation mit der Firma Wienerberger in Massivfertigteilbauweise errichtet. Es werden bereits fertige Wände vom Werk geliefert die auf der Baustelle nur mehr verhoben und versetzt werden. Dadurch wird der Bauablauf optimiert und die Bauzeit verkürzt.

 

Lassen Sie sich diese einmalige Gelegenheit nicht entgehen – Ihr neues Traumhaus wartet auf Sie!

 

ZUERST MIETE – NACH 5 JAHREN KAUF MÖGLICH

 

Gerne können Sie die Doppelhaushälfte auch sofort in Ihr Eigentum übernehmen und schon bald in Ihr neues Zuhause einziehen.

 

Mit Bezahlung des Finanzierungsbeitrages erwerben Sie das Optionsrecht auf Kauf der gemieteten Doppelhaushälfte gem. den Bestimmungen des Wohnungsgemeinnützigkeitsgesetzes, dem die NEUE EISENSTÄDTER als gemeinnütziger Bauträger unterliegt.


Die Kaufoption kann erstmals nach Ablauf von fünf Jahren nach Abschluss des Mietvertrages ausgeübt werden, indem Sie einen Antrag auf Übertragung der Doppelhaushälfte ins Eigentum stellen. Ein derartiger Antrag kann danach noch zwei Mal jeweils nach Ablauf von fünf Jahren gestellt werden.


Auch die Abwicklung des Kaufes unterliegt den gesetzlichen Bestimmungen des Wohnungsgemeinnützigkeitsgesetzes (Kaufpreisermittlung zum Zeitpunkt des Kaufes etc.).

 

Die Finanzierung der Reihenhäuser erfolgt aus einem nicht rückzahlbaren Zuschuss vom Land Burgenland und einem Bankdarlehen, welches von der NEUE EISENSTÄDTER beantragt wird.

 

Voraussetzungen für die Sonderförderung

 

Fördervoraussetzungen sind:


• Hauptwohnsitz 2 Jahre in Österreich und 2 Jahre Bezug österreichischer Einkünfte ODER 5 Jahre Bezug österreichischer Einkünfte

• Österreichische Staatsbürgerschaft oder diesen gleichgestellte Personen

• Wohnbedarf muss gegeben sein

• Das Reihenhaus muss zum Hauptwohnsitz werden

• Das Jahresnettoeinkommen darf dzt. folgende Höchstgrenzen nicht überschreiten:

 EUR 48.400,00 bei einer Person im Haushalt
 EUR 82.500,00 bei zwei Personen im gemeinsamen Haushalt
 EUR 84.150,00 bei drei Personen im gemeinsamen Haushalt
 EUR 85.800,00 bei vier Personen im gemeinsamen Haushalt
 EUR 88.000,00 bei fünf Personen im gemeinsamen Haushalt

 

Folgende Wohneinheiten stehen im Moment zur Verfügung:

 

DH1

Wohnfläche: 106,24 m²

Eigengarten: 114,20 m²

Finanzierungsbeitrag:   € 65.454,99

Gesamtmiete:   € 1.044,53

 

DH2

Wohnfläche: 106,24 m²

Eigengarten: 155,65 m²

Finanzierungsbeitrag:   € 73.557,18

Gesamtmiete:   € 1.045,20

 

DH3

Wohnfläche: 106,24 m²

Eigengarten: 150,91 m²

Finanzierungsbeitrag:   € 72.026,35

Gesamtmiete:   € 1.045,07

 

DH4

Wohnfläche: 106,24 m²

Eigengarten: 145,33 m²

Finanzierungsbeitrag:   € 71.037,90

Gesamtmiete:   € 1.044,99

 

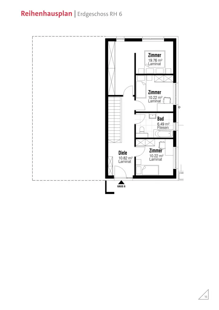
DH6

Wohnfläche: 112,82 m²

Eigengarten: 132,86 m²

Finanzierungsbeitrag:   € 75.447,73

Gesamtmiete:   € 1.109,09

 

 

 

Die monatliche Gesamtmiete setzt sich zusammen

  • aus der Miete = der Tilgung der Darlehen (Bankdarlehen)
  • aus den Betriebskosten
  • den Instandhaltungs- und Verwaltungskosten
  • der gesetzlichen Mehrwertsteuer
  • sowie den PKW-Stellplätzen

 

Die Betriebskosten beinhalten

  •  Gebäudeversicherung
  •  Grundsteuer
  •  Winterdienst
  •  Kanal
  •  Anlagenbetreuung für die allgemeine Grünfläche
  •  Schädlingsbekämpfung
  • Allgemeinstrom

 

Die Kosten für Strom, Heizung, Wasser und Müll werden von den Betreibern direkt mit dem Mieter verrechnet. 

Für später notwendige Instandsetzungsarbeiten am Gebäude und an den Außenanlagen wird ein „Erhaltungs- und Verbesserungsbeitrag (EVB)“ einbehalten. Der Erhaltungs- und Verbesserungsbeitrag wird ebenso wie die Höhe der Verwaltungskosten nach den gesetzlichen Bestimmungen festgelegt.

Die Gesamtmiete enthält weiters die gesetzliche Mehrwertsteuer.

In der Gesamtmiete ist auch die PKW-Stellplätze enthalten

 

Unsere Angaben erfolgen aufgrund der Informationen und Unterlagen, welche uns vom Abgeber oder dessen Beauftragten zur Verfügung gestellt wurden und sind ohne Gewähr.

 

Für Rückfragen und Besichtigung stehe ich Ihnen unter der Tel. Nr. 0664 / 621 20 58  selbstverständlich gerne zur Verfügung.

 

Ihre Immobilienträume.

Unser Ziel!

www.realbrokers.at

Wir weisen darauf hin, dass zwischen dem Vermittler und dem zu vermittelnden Dritten ein familiäres oder wirtschaftliches Naheverhältnis besteht.

Der Immobilienmakler erklärt, dass er – entgegen dem in der Immobilienwirtschaft üblichen Geschäftsgebrauch des Doppelmaklers – einseitig nur für den Vermieter tätig ist.

Downloads

Lagepläne

Plan 0

Fakten

Objektnummer:
16431
Objekttyp:
Haus
Terrasse:
1
Balkonfläche:
146,64 m²
Wohnfläche:
112,82 m²
Gartenfläche:
132,86 m²
Zimmer:
3
Badezimmer:
1
Toilette:
2
Baujahr:
2024
Neubau:
Ja
Zustand:
Erstbezug
Verfügbarkeit:
Verfügbar

Preisdetails

Nettomiete:
1.008,26 €
Bruttomiete:
1.008,26 €
Gesamtmiete:
1.109,09 €
Provision:
Gemäß Erstauftraggeberprinzip bezahlt der Abgeber die Provision. BMM
Monatliche Kosten USt.:
100,83 €
Miete Ust.:
100,83 €

Energieeffizienz

HWB:
29.70 kWh/(m²*a)
Klasse HWB:
B
fGEE:
0.54
Klasse fGEE:
A+
Energieausweisart:
Energiebedarfsausweis

Ansprechpartner

Claudia Koller

Selbständiger Kooperationspartner

Anfrage
Max. 500 Zeichen
Ich habe die Datenschutzvereinbarung gelesen und verstanden, und ich stimme der Verarbeitung meiner persönlichen Daten wie darin beschrieben zu. *