Kopfzeile

neu — ++ Erdgeschosswohnung mit Terrasse & Parkplatz in der Wienerstraße ++

Wohnung zur Miete in Wiener Neustadt (2700) / Objektnummer: 16752

Wohnung zur Miete in Wiener Neustadt (2700) 850,00 €

3 Zimmer

1 Badezimmer

76 m² Wohnfläche

7 m² Außenfläche

barrierefreiTerrasseBadewanneGarageStellplatzZentralheizungKellerflächeParkettKabel-TV

Die hier zur Vermietung gelangende Wohnung befindet sich in der Wiener Straße in Wiener Neustadt und liegt in einem gepflegten Wohnhaus, das ca. 1997/1998 errichtet wurde.

 

Die Wohnung befindet sich im Erdgeschoss und überzeugt durch eine durchdachte Raumaufteilung sowie eine gemütliche Terrasse.

 


 

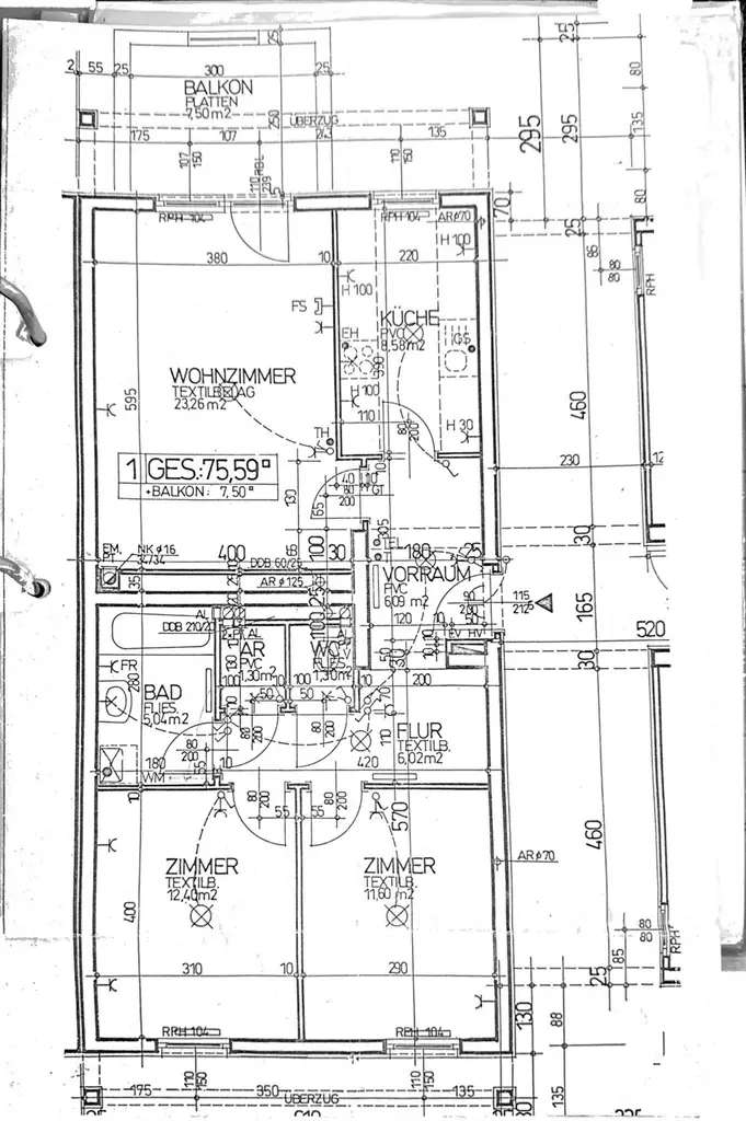
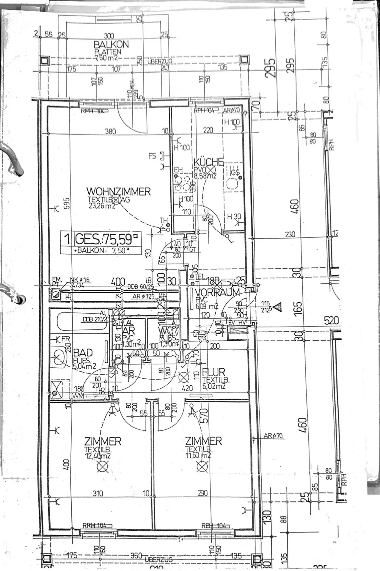
Raumaufteilung

 

  • Vorraum

  • Wohnzimmer mit Ausgang auf die Terrasse

  • Offene Küche

  • 2 Schlafzimmer

  • Badezimmer mit Badewanne, Waschtisch und Waschmaschinenanschluss

  • Separates WC

  • Abstellraum

 

Ein großes Kellerabteil sowie ein eigener Parkplatz bzw. Garagenplatz runden dieses attraktive Angebot perfekt ab.

Wir weisen darauf hin, dass zwischen dem Vermittler und dem zu vermittelnden Dritten ein familiäres oder wirtschaftliches Naheverhältnis besteht.

Der Immobilienmakler erklärt, dass er – entgegen dem in der Immobilienwirtschaft üblichen Geschäftsgebrauch des Doppelmaklers – einseitig nur für den Vermieter tätig ist.

Ausstattung

Parkett, Zentralheizung, Einbauküche, Ostbalkon / -terrasse, Badewanne, Kabel / Satelliten-TV, Garage, Fernwärme, Innenliegender Sonnenschutz, Toilette, Massiv, Grünblick

Lage und Verkehrsanbindung

Zentrale Lage / Sehr gute Infrastruktur / Einkaufsmöglichkeiten fußläufig erreichbar / Supermärkte, Apotheke, Banken in unmittelbarer Nähe / Schulen & Kindergärten in der Umgebung / Nähe Innenstadt von Wiener Neustadt / Gute öffentliche Verkehrsanbindung / Rasch erreichbar: Wiener Neustadt Hauptbahnhof / Schnelle Verbindung nach Wien & Graz / Nähe A2 Südautobahn / Freizeit- & Sportmöglichkeiten / Attraktive Wohnlage mit urbanem Komfort

Grundriss

Lageplan

Inhalt wird geladen
Preise
Gesamtmiete
850,00 €
Nettomiete
488,02 €
Betriebskosten netto
284,71 €
Betriebskosten brutto
313,18 €
Betriebskosten brutto
284,71 €
Gesamtmiete USt.
77,27 €
Kaution, Details
3 Bruttomonatsmieten
Provision
Gemäß Erstauftraggeberprinzip bezahlt der Abgeber die Provision.
Fakten
Objekttyp
Wohnung
Wohnfläche
76 m²
Terrassenfläche
7 m²
Kellerfläche
5 m²
Toiletten
1
Terrassen
1
Stockwerk
EG
Baujahr
1997
Gebäude
Neubau
Zustand
teilsaniert
Status
verfügbar
Energieeffizienz
Energieausweisart
Energiebedarfsausweis
HWB
52,20 kWh/(m²a)
HWB-Klasse
C
FGEE
0,95
FGEE-Klasse
B
Michael Blümel

realbrokers Dienstleistungs GmbH & Co KG

Michael Blümel

Selbständiger Kooperationspartner