Kopfzeile

Erstbezug - Saniertes Haus mit Garten zu verkaufen!

Haus zum Kauf in Sollenau (2601), Kirchengasse 4 / Objektnummer: 16552

Haus zum Kauf in Sollenau (2601) 297.000 €

2 Zimmer

1 Badezimmer

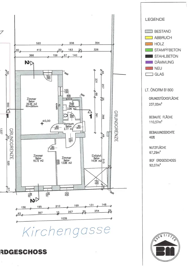
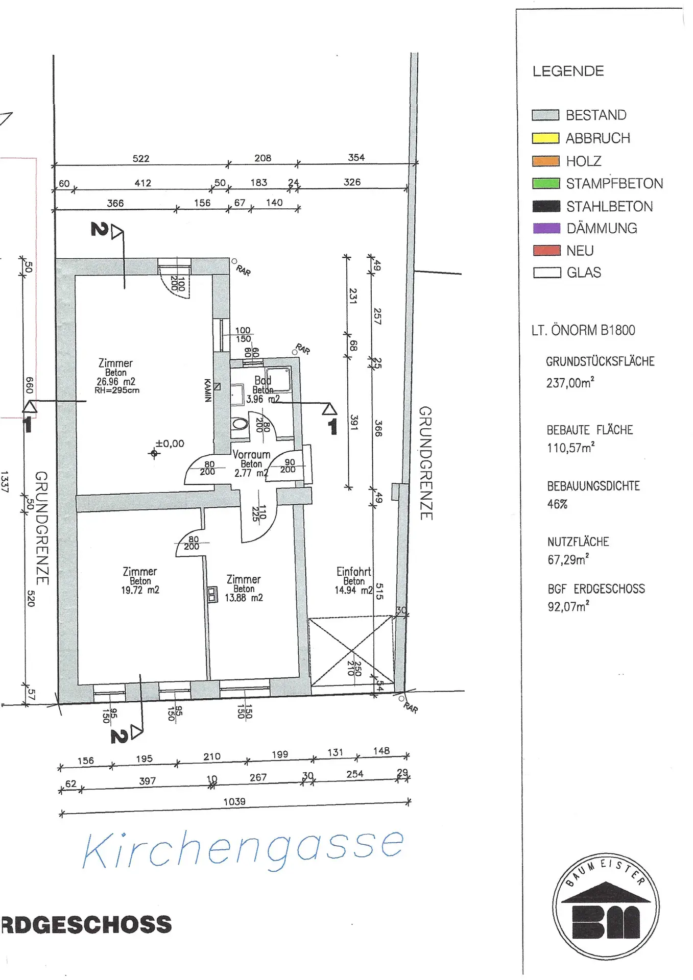
67 m² Wohnfläche

237 m² Grundfläche

DuscheRolllädenCarportStellplatzFußbodenheizungFliesen

Zum Verkauf gelangt dieses neu sanierte Haus mit Garten in 2601 Sollenau - Bezirk Wiener Neustadt.

Das Gebäude wurde gerade komplett hochwertig saniert + wäre sofort beziehbar.

- neue Fassade

- neues Aluminium Dach

- neue Elektrik Heizkörper + zusätzliche Fußbodenheizung im Vorzimmer + im Badezimmer

- neues Badezimmer mit edlen Fliesen + Waschtisch Spiegelschrank

- neue Elektrik, neue Vinylböden + neue Türen + hochwertige Fliesen

- neue Einbauküche inklusive Geräte

Die Liegenschaft teilt sich wie folgt auf -

Außenbereich

- Hofeinfahrt / Stellplätze für Pkw

- Innenhof

- Garten mit Mauer umrandet / Gebäudezubau - Möglichkeit: nach Abstimmung mit dem Bauamt

- Haus mit einer Wohnfläche von 67,29m2

- Vorzimmer 2,77m2

- Badezimmer mit Dusche + WC inkl. Waschmaschinenanschluss 3,96m2

- neue Einbauküche inkl. Essbereich 13,88m2

- Schlafzimmer 19,72m2

- Wohnzimmer 26,96m2 mit Ausgang in den Garten inkl. Vorbereitung für Schwedenofen

- Rohdachboden

Vereinbaren Sie Ihre persönliche Besichtigung.

Ihre Immobilienträume.

Unser Ziel!

www.realbrokers.at

 

 

Ausstattung

Fliesen, Kunststoffboden, Elektro, Fußbodenheizung, Einbauküche, Bad mit Fenster, Dusche, Carport, Rollladen, Satteldach, Doppel- / Mehrfachverglasung, Kunststofffenster, Bad mit WC, Ziegel

Lage und Verkehrsanbindung

nähe Baden - Wiener Neustadt

Grundriss

Lageplan

Inhalt wird geladen
Preise
Kaufpreis
297.000,00 €
Vermittlungsprovision
Provision
3% des Kaufpreises zzgl. 20% USt.
Fakten
Objekttyp
Haus
Wohnfläche
67 m²
Grundfläche
237 m²
Toiletten
1
Baujahr
1948
Letzte Sanierung
2025
Zustand
vollsaniert
Status
verfügbar
Energieeffizienz
Energieausweisart
Energiebedarfsausweis
HWB
237,00 kWh/(m²a)
HWB-Klasse
F
Gültig bis
25.11.2034
Harald Ebner

realbrokers Dienstleistungs GmbH & Co KG

Harald Ebner

Inhaber / Dipl. Betriebswirt / MBA