Kopfzeile

Freifinanzierte Doppelhäuser in Ebenfurth - SOFORTEIGENTUM

Haus zum Kauf in Ebenfurth (2490) / Objektnummer: 16087

Haus zum Kauf in Ebenfurth (2490) 602.906 €

5 Zimmer

1 Badezimmer

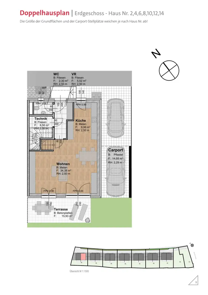
144 m² Wohnfläche

144 m² Außenfläche

TerrasseBadewanneRolllädenCarportStellplatzAußenstellplatzFußbodenheizungGartenflächeFliesenKabel-TV

Freifinanzierte Doppelhäuser in Ebenfurth - SOFORTEIGENTUM

 

In Ebenfurth errichtet die Neue Eisenstädter eine Doppelhausanlage mit 7 Doppelhäusern. Die Doppelhäuser gliedern sich in Erd-, Ober- und Dachgeschoss und sind mit einer großzügigen Wohnnutzfläche ausgestattet. Das absolute Highlight dieses Bauvorhabens ist das Dachgeschoss, welches beliebig ausgebaut werden kann.


Die Gemeinde zählt ungefähr 3.200 Einwohner und liegt im Bezirk Wiener Neustadt-Land. Das Gemeindegebiet grenzt im Osten an das Burgenland, welches nur durch die Leitha mit Neufeld getrennt ist. In der Gemeinde sind eine Volksschule und eine Mittelschule vorhanden. Ein weiteres Highlight ist die Autobahnanbindung A3 und die öffentliche Anbindung mittels der Pottendorfer Linie von Wiener Neustadt nach Wien, Györ oder auch Sopron.

 

Lassen Sie sich diese einmalige Gelegenheit nicht entgehen – Ihr neues Traumhaus wartet auf Sie!

 

Gerne können Sie das Doppelhaus auch in Miete mit Kaufoption übernehmen und schon bald in Ihr neues Zuhause einziehen.

 

 

Freifinanziertes Bauprojekt


Da für die Errichtung des gegenständlichen Objektes keine Wohnbauförderung in Anspruch genommen wird, muss hier:

  •  nicht die österreichische Staatsbürgerschaft gegeben sein (EU-Bürger)
  •  keine Einkommensgrenze eingehalten werden. 
  •  Der Vertragsnehmer hat jedoch den Hauptwohnsitz zu begründen!

 

Folgende Wohneinheiten stehen im Moment zur Verfügung:

 

DH 1

Wohnfläche: 143,99 m²

Eigengarten: 161,58 m²

Kaufpreis: € 613.234,26

Betriebskosten: € 298,78

 

 

DH 2

Wohnfläche: 143,99 m²

Eigengarten: 122,87  m²

Kaufpreis: € 585.736,77

Betriebskosten: € 298,78

 

 

DH 3

Wohnfläche: 143,99 m²

Eigengarten: 129,73  m²

Kaufpreis: € 598.476,60

Betriebskosten: € 298,78

 

 

DH 4

Wohnfläche: 143,99 m²

Eigengarten: 128,36  m²

Kaufpreis: € 602.906,28

Betriebskosten: € 298,78

 

 

DH 5

Wohnfläche: 143,99 m²

Eigengarten: 129,00  m²

Kaufpreis: € 602.476,45

Betriebskosten: € 298,78

 

 

DH 6

Wohnfläche: 143,99 m²

Eigengarten: 138,63  m²

Kaufpreis: € 608.565,78

Betriebskosten: € 298,78

 

 

DH 7

Wohnfläche: 143,99 m²

Eigengarten: 136,84  m²

Kaufpreis: € 606.601,67

Betriebskosten: € 298,78

 

 

DH 8

Wohnfläche: 143,99 m²

Eigengarten: 136,13  m²

Kaufpreis: € 605.968,86

Betriebskosten: € 298,78

 

 

DH 9

Wohnfläche: 143,99 m²

Eigengarten: 136,17  m²

Kaufpreis: € 605.127,10

Betriebskosten: € 298,78

 

 

DH 10

Wohnfläche: 143,99 m²

Eigengarten: 141,04  m²

Kaufpreis: € 607.353,88

Betriebskosten: € 298,78

 

 

DH 11

Wohnfläche: 143,99 m²

Eigengarten: 142,50  m²

Kaufpreis: € 607.909,09

Betriebskosten: € 298,78

 

 

DH 12

Wohnfläche: 143,99 m²

Eigengarten: 143,98  m²

Kaufpreis: € 607.628,50

Betriebskosten: € 298,78

 

 

DH 13

Wohnfläche: 143,99 m²

Eigengarten: 144,47  m²

Kaufpreis: € 608.989,65

Betriebskosten: € 298,78

 

 

DH 14

Wohnfläche: 143,99 m²

Eigengarten: 151,66  m²

Kaufpreis: € 608.870,25

Betriebskosten: € 298,78

 

Die KFZ-Abstellplätze sind im Kaufpreis enthalten.

 

Die Betriebskosten beinhalten

  •  Gebäudeversicherung und Grundsteuer
  •  Müllabfuhr
  •  Allgemeinstrom, Kanal und Wasser
  •  Winterdienst
  • Anlagenbetreuung für allgemeine Grünflächen

 

Die Kosten für Strom und Heizung werden von den Betreibern direkt mit den Eigentümern verrechnet. 

Für später notwendige Instandsetzungsarbeiten am Gebäude und an den Außenanlagen wird ein „Erhaltungs- und Verbesserungsbeitrag (EVB)“ einbehalten. Der Erhaltungs- und Verbesserungsbeitrag wird ebenso wie die Höhe der Verwaltungskosten nach den gesetzlichen Bestimmungen festgelegt.

Die monatlichen Kosten enthalten weiters die gesetzliche Mehrwertsteuer.

 

 

Unsere Angaben erfolgen aufgrund der Informationen und Unterlagen, welche uns vom Abgeber oder dessen Beauftragten zur Verfügung gestellt wurden und sind ohne Gewähr.

 

Für Rückfragen und Besichtigung stehe ich Ihnen unter der Tel. Nr. 0664 / 621 20 58  selbstverständlich gerne zur Verfügung.

 

Ihre Immobilienträume.

Unser Ziel!

www.realbrokers.at

Wir weisen darauf hin, dass zwischen dem Vermittler und dem zu vermittelnden Dritten ein familiäres oder wirtschaftliches Naheverhältnis besteht.

Ausstattung

Fliesen, Laminat, Fußbodenheizung, Bad mit Fenster, Badewanne, Kabel / Satelliten-TV, Carport, Parkplatz, Luftwärmepumpe, Südwestbalkon / -terrasse, Mechanische Be- und Entlüftung, Toilette, Rollladen, Massiv, Doppel- / Mehrfachverglasung, Kunststofffenster

Grundrisse

Lageplan

Inhalt wird geladen
Preise
Kaufpreis
602.906,28 €
Betriebskosten netto
271,62 €
Betriebskosten brutto
298,78 €
Betriebskosten brutto
271,62 €
Monatlich gesamt brutto
298,78 €
Monatliche Kosten USt.
27,16 €
Fakten
Objekttyp
Haus
Wohnfläche
144 m²
Terrassenfläche
16 m²
Gartenfläche
128 m²
Toiletten
2
Terrassen
1
Baujahr
2025
Gebäude
Neubau
Zustand
neuwertig
Status
verfügbar
Energieeffizienz
Energieausweisart
Energiebedarfsausweis
HWB
22,20 kWh/(m²a)
HWB-Klasse
A
FGEE
0,57
FGEE-Klasse
A+
Claudia Koller

realbrokers Dienstleistungs GmbH & Co KG

Claudia Koller

Selbständiger Kooperationspartner