Kopfzeile

Freifinanzierte Doppelhaushälften in Landegg/Pottendorf - MIETE MIT KAUFOPTION

Haus zur Miete in Landegg (2486) / Objektnummer: 15081

Haus zur Miete in Landegg (2486) 1.638,71 €

5 Zimmer

1 Badezimmer

130 m² Wohnfläche

272 m² Außenfläche

278 m² Grundfläche

LoggiaTerrasseDuscheBadewanneRolllädenStellplatzAußenstellplatzFußbodenheizungGartenflächeKellerflächeFliesenKabel-TV

Freifinanzierte Doppelhaushälften in Landegg/Pottendorf

 

Ihr neues Zuhause in Landegg bei Pottendorf: Modern, geräumig und in naturnaher Umgebung

 

In der idyllischen Gemeinde Landegg entsteht eine exklusive Doppelhausanlage, bestehend aus sechs modernen Doppelhaushälften. Hier erwartet Sie hochwertiges Wohnen auf vier Etagen – inklusive großzügigem Keller, hellem Atelier und beeindruckender Dachterrasse mit atemberaubendem Ausblick.

Die lichtdurchfluteten Reihenhäuser bieten nicht nur ausreichend Platz für die ganze Familie, sondern auch jede Menge Komfort. Ein echtes Highlight ist der großzügige Eigengarten, in dem Sie die Natur genießen können – perfekt zum Entspannen, Spielen oder für gesellige Grillabende. Zusätzlich bietet jedes Haus sowohl im Erdgeschoss als auch im Dachgeschoss eine Terrasse, die das Leben im Freien noch angenehmer macht.

Ein besonderes Plus ist der Keller, der Ihnen vielseitige Nutzungsmöglichkeiten bietet – ob als Lagerfläche, Hobbyraum oder Fitnessbereich. Das Atelier im Dachgeschoss schafft Raum für Kreativität und Rückzugsmöglichkeiten – ein idealer Platz für Homeoffice, Ihre Hobbys oder einfach zum Entspannen.

Die Gemeinde Pottendorf mit ihren rund 7.500 Einwohnern bietet alles, was das Herz begehrt: Von der malerischen Kulisse des Schlosses Pottendorf bis hin zur Filialkirche zur Kreuzerhöhung – hier finden Sie sowohl Kultur als auch Natur. Für Familien gibt es drei Kindergärten, eine Volksschule sowie eine Neue Mittelschule. Dank der nähe zur Autobahn A3 und der guten Anbindung an Wien sind Sie auch verkehrstechnisch bestens versorgt.

Lassen Sie sich diese einmalige Gelegenheit nicht entgehen – Ihr neues Traumhaus wartet auf Sie!

 

ZUERST MIETE – NACH 10 JAHREN KAUF MÖGLICH

 

Mit Bezahlung des Finanzierungsbeitrages erwerben Sie das Optionsrecht auf Kauf des gemieteten Reihenhauses gem.  den Bestimmungen des Wohnungsgemeinnützigkeitsgesetzes, dem die NEUE EISENSTÄDTER als gemeinnütziger Bauträger unterliegt.


Die Kaufoption kann erstmals nach Ablauf von fünf Jahren nach Abschluss des Mietvertrages ausgeübt werden, indem Sie einen Antrag auf Übertragung des Reihenhauses ins Eigentum stellen. Ein derartiger Antrag kann danach noch zwei Mal jeweils nach Ablauf von fünf Jahren gestellt werden.


Auch die Abwicklung des Kaufes unterliegt den gesetzlichen Bestimmungen des Wohnungsgemeinnützigkeitsgesetzes (Kaufpreisermittlung zum Zeitpunkt des Kaufes etc.).

 

Freifinanziertes Bauprojekt


Da für die Errichtung des gegenständlichen Objektes keine Wohnbauförderung in Anspruch genommen wird, muss hier:

  •  nicht die österreichische Staatsbürgerschaft gegeben sein (EU-Bürger)
  •  keine Einkommensgrenze eingehalten werden. 

 

Folgende Wohneinheiten stehen im Moment zur Verfügung:

 

RH 1

Wohnfläche: 125,30 m²

Garten: 228,71 m²

Finanzierungsbeitrag: € 111.301,90

Gesamtmiete: € 1.593,14

 

RH 2

Wohnfläche: 129,07 m²

Garten: 208,16 m²

Finanzierungsbeitrag: € 104.581,93

Gesamtmiete: € 1.632,57

 

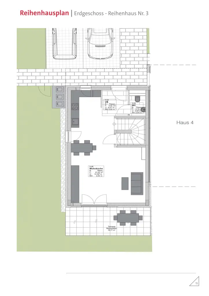
RH 3

Wohnfläche: 129,52 m²

Garten: 210,86 m²

Finanzierungsbeitrag: € 105.498,47

Gesamtmiete: € 1.638,71

 

RH 5

Wohnfläche: 125,30 m²

Garten: 185,60 m²

Finanzierungsbeitrag: € 97.596,69

Gesamtmiete: € 1.581,55

 

RH 6

Wohnfläche: 129,07 m²

Garten: 161,27 m²

Finanzierungsbeitrag: € 89.675,02

Gesamtmiete: € 1.619,99

 

RH 7

Wohnfläche: 127,48 m²

Garten: 146,98 m²

Finanzierungsbeitrag: € 89.641,00

Gesamtmiete: € 1.600,87

 

 

Die monatliche Gesamtmiete setzt sich zusammen

  • aus der Miete = der Tilgung der Darlehen (Bankdarlehen)
  • aus den Betriebskosten
  • den Instandhaltungs- und Verwaltungskosten
  • der gesetzlichen Mehrwertsteuer
  • sowie den PKW-Stellplätzen
  •  

Die Betriebskosten beinhalten

  •  Gebäudeversicherung
  •  Grundsteuer
  •  Allgemeinstrom, Kanal und Wasser
  •  Winterdienst und Müll
  •  Anlagenbetreuung für allgem. Grünflächen und Straße

 

Die Kosten für Strom und Heizung werden von den Betreibern direkt mit dem Mieter verrechnet. Auf den Grundstücken der Häuser 6 bis 8 verläuft ein offenes Gerinne. Das Gerinne wird 2 x im Jahr durch eine Firma gereinigt/instandgesetzt.  Hierzu muss der Zugang zu den Eigengärten gewährleistet werden. Die Verständigung erfolgt ungefähr zwei Wochen vor der Reinigung.

Für später notwendige Instandsetzungsarbeiten am Gebäude und an den Außenanlagen wird ein „Erhaltungs- und Verbesserungsbeitrag (EVB)“ einbehalten. Der Erhaltungs- und Verbesserungsbeitrag wird ebenso wie die Höhe der Verwaltungskosten nach den gesetzlichen Bestimmungen festgelegt.

Die Gesamtmiete enthält weiters die gesetzliche Mehrwertsteuer.

In der Gesamtmiete sind auch dir PKW-Stellplätze enthalten

 

Unsere Angaben erfolgen aufgrund der Informationen und Unterlagen, welche uns vom Abgeber oder dessen Beauftragten zur Verfügung gestellt wurden und sind ohne Gewähr.

 

Für Rückfragen und Besichtigung stehe ich Ihnen unter der Tel. Nr. 0664 / 621 20 58  selbstverständlich gerne zur Verfügung.

 

Ihre Immobilienträume.

Unser Ziel!

www.realbrokers.at

Wir weisen darauf hin, dass zwischen dem Vermittler und dem zu vermittelnden Dritten ein familiäres oder wirtschaftliches Naheverhältnis besteht.

Der Immobilienmakler erklärt, dass er – entgegen dem in der Immobilienwirtschaft üblichen Geschäftsgebrauch des Doppelmaklers – einseitig nur für den Vermieter tätig ist.

Ausstattung

Fliesen, Laminat, Fußbodenheizung, Badewanne, Dusche, Kabel / Satelliten-TV, Parkplatz, Luftwärmepumpe, Südwestbalkon / -terrasse, Mechanische Be- und Entlüftung, Toilette, Rollladen, Flachdach, Schlüsselfertig mit Keller, Doppel- / Mehrfachverglasung, Kunststofffenster

Grundrisse

Lageplan

Inhalt wird geladen
Preise
Gesamtmiete
1.638,71 €
Nettomiete
1.489,74 €
Gesamtmiete USt.
148,97 €
Provision
Gemäß Erstauftraggeberprinzip bezahlt der Abgeber die Provision.
Finanzierungsbeitrag
105.498,47 €
Finanzierungsbeitrag
105.498,47 €
Fakten
Objekttyp
Haus
Wohnfläche
130 m²
Terrassenfläche
52 m²
Loggiafläche
9 m²
Kellerfläche
48 m²
Gartenfläche
211 m²
Grundfläche
278 m²
Toiletten
2
Terrassen
3
Loggias
1
Baujahr
2023
Gebäude
Neubau
Zustand
neuwertig
Status
verfügbar
Energieeffizienz
Energieausweisart
Energiebedarfsausweis
HWB
32,70 kWh/(m²a)
HWB-Klasse
B
FGEE
0,71
FGEE-Klasse
A
Claudia Koller

realbrokers Dienstleistungs GmbH & Co KG

Claudia Koller

Selbständiger Kooperationspartner