Kopfzeile

Freifinanzierte Mietwohnungen mit Kaufoption in Rohrbach bei Mattersburg - 2 mögliche Finanzierungsvarianten

Wohnung zur Miete in Rohrbach bei Mattersburg (7222) / Objektnummer: 16379

Wohnung zur Miete in Rohrbach bei Mattersburg (7222) 722,25 €

2 Zimmer

1 Badezimmer

55 m² Wohnfläche

8 m² Außenfläche

BalkonBadewanneRolllädenStellplatzAußenstellplatzFliesenKabel-TV

Freifinanzierte Mietwohnungen mit Kaufoption

 

Ein Zuhause zum Ankommen, zum Abschalten, zum Leben, zum Lieben. Genau das ist das Ziel. Wohnträume und Lebensräume, in denen sich zukünftige Mieter wohlfühlen.

Daher freut es uns besonders, in Rohrbach ein weiteres Bauprojekt anbieten zu können. Insgesamt sollen auf diesem Areal 15 moderne Doppelhäuser und 8 geschmackvolle Wohnungen entstehen. 

Die Bewohner  der Wohnungen im Erdgeschoß können sich auf einen großzügigen Eigengarten freuen. Die Wohnungen im Obergeschoß werden mit einem gemütlichen Balkon ausgestattet. Freuen Sie sich auf eine kleine, aber feine Wohnhausanlage mit schöner Aussicht!

 

Da für die Errichtung des gegenständlichen Objektes keine Wohnbauförderung in Anspruch genommen wird, muss hier: 

  • nicht die Österreichische Staatsbürgerschaft gegeben sein (EU-Bürger) 
  • keine Einkommensgrenze eingehalten werden. 
  • Der Vertragsnehmer hat jedoch den Hauptwohnsitz zu begründen

 

ZUERST MIETE – NACH 10 JAHREN KAUF MÖGLICH 

Mit Bezahlung des Finanzierungsbeitrages erwerben Sie das Optionsrecht auf Kauf der gemieteten Wohnung gemäß den Bestimmungen des Wohnungsgemeinnützigkeitsgesetzes. 

Die Kaufoption kann erstmals nach Ablauf von fünf Jahren nach Abschluss des Mietvertrages ausgeübt werden, indem Sie einen Antrag auf Übertragung der Wohnung ins Wohnungseigentum stellen.

Ein derartiger Antrag kann danach noch zwei Mal jeweils nach Ablauf von fünf Jahren gestellt werden.

Auch die Abwicklung des Kaufes unterliegt den gesetzlichen Bestimmungen des Wohnungsgemeinnützigkeitsgesetzes (Kaufpreisermittlung zum Zeitpunkt des Kaufes etc.).

 

Sie sind also flexibel – wenn die erste Anschaffungsphase vorüber ist, können Sie im zweiten Schritt die Wohnung kaufen und Eigentümer werden. Der Finanzierungsbeitrag wird eingerechnet (abzüglich 1 % jährlich). Sie übernehmen das Bankdarlehen zur Selbstzahlung. Nur mehr der darüber hinausgehende Betrag ist von Ihnen bar zu bezahlen. 

 

Wenn Sie nicht kaufen wollen, bleiben Sie weiterhin Mieter – nur Ihnen ist die Kaufoption eingeräumt und nur Sie können kaufen. 

 

 

Folgende Wohneinheiten stehen im Moment zur Verfügung:

 

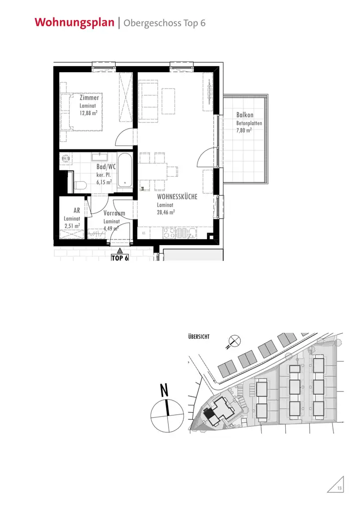
Top 6

Wohnfläche: 54,78 m²

Finanzierungsbeitrag:   € 16.239,14

Gesamtmiete:   € 722,25

 

 

In der Gesamtmiete ist der PKW-Stellplatz bereits enthalten.

 

Die monatliche Miete setzt sich zusammen aus:

  • aus der Miete = der Tilgung der Darlehen (Bankdarlehen)
  • aus den Betriebskosten
  • den Instandhaltungs- und Verwaltungskosten
  • der gesetzlichen Mehrwertsteuer
  • sowie dem PKW-Stellplatz.

 

Das Bankdarlehen hat eine maximale Laufzeit von 35 Jahren. Die Höhe der Rückzahlung für das Bankdarlehen beträgt 3 % p.a. (Tilgung und Zinsen) ab Bezug und steigt jährlich um ca. 2 %.

Die Höhe der Rückzahlung für das Bankdarlehen richtet sich nach dem jeweils geltenden Zinssatz, ist daher auch veränderlich.

 

Die Betriebskosten beinhalten:

  •  Gebäudeversicherung
  •  Grundsteuer
  •  Allgemeinstrom
  •  Winterdienst
  •  Anlagenbetreuung
  •  Kanal, Müll, Wasser
  •  Spielplatz

Die Kosten für Strom und Heizung werden von den Betreibern direkt mit dem Mieter verrechnet.

 

Für später notwendige Instandsetzungsarbeiten am Gebäude und an den Außenanlagen wird ein „Erhaltungs- und Verbesserungsbeitrag (EVB)“ einbehalten. Der Erhaltungs- und Verbesserungsbeitrag wird ebenso wie die Höhe der Verwaltungskosten nach den 
gesetzlichen Bestimmungen festgelegt. 

Die Miete enthält weiters die gesetzliche Mehrwertsteuer. 

 

Unsere Angaben erfolgen aufgrund der Informationen und Unterlagen, welche uns vom Abgeber oder dessen Beauftragten zur Verfügung gestellt wurden und sind ohne Gewähr.

 

 

Ihre Immobilienträume.

Unser Ziel!

www.realbrokers.at

 

 

Wir weisen darauf hin, dass zwischen dem Vermittler und dem zu vermittelnden Dritten ein familiäres oder wirtschaftliches Naheverhältnis besteht.

Der Immobilienmakler erklärt, dass er – entgegen dem in der Immobilienwirtschaft üblichen Geschäftsgebrauch des Doppelmaklers – einseitig nur für den Vermieter tätig ist.

Ausstattung

Fliesen, Laminat, Ostbalkon / -terrasse, Badewanne, Kabel / Satelliten-TV, Parkplatz, Luftwärmepumpe, Mechanische Be- und Entlüftung, Rollladen, Massiv, Doppel- / Mehrfachverglasung, Kunststofffenster, Bad mit WC

Grundrisse

Lageplan

Inhalt wird geladen
Preise
Gesamtmiete
722,25 €
Nettomiete
656,59 €
Gesamtmiete USt.
65,66 €
Provision
Gemäß Erstauftraggeberprinzip bezahlt der Abgeber die Provision.
Finanzierungsbeitrag
16.239,14 €
Finanzierungsbeitrag
16.239,14 €
Fakten
Objekttyp
Wohnung
Wohnfläche
55 m²
Balkonfläche
8 m²
Toiletten
1
Balkone
1
Stockwerk
1. Etage
Baujahr
2023
Gebäude
Neubau
Zustand
neuwertig
Status
verfügbar
Energieeffizienz
Energieausweisart
Energiebedarfsausweis
HWB
33,10 kWh/(m²a)
HWB-Klasse
B
FGEE
0,63
FGEE-Klasse
A+
Claudia Koller

realbrokers Dienstleistungs GmbH & Co KG

Claudia Koller

Selbständiger Kooperationspartner