Kopfzeile

Freifinanzierte Reihenhäuser in Hainburg an der Donau - MIETE MIT KAUFOPTION

Haus zur Miete in Hainburg an der Donau (2410) / Objektnummer: 15322

Haus zur Miete in Hainburg an der Donau (2410) 1.416,20 €

4 Zimmer

1 Badezimmer

111 m² Wohnfläche

314 m² Außenfläche

TerrasseDuscheRolllädenCarportStellplatzFußbodenheizungGartenflächeKellerflächeKabel-TV

Freifinanzierte Reihenhäuser in Hainburg an der Donau - MIETE MIT KAUFOPTION

 

Ihr neues Zuhause in Hainburg an der Donau: Modern, geräumig und in naturnaher Umgebung

 

Die lichtdurchfluteten Reihenhäuser bieten nicht nur ausreichend Platz für die ganze Familie, sondern auch jede Menge Komfort. Ein echtes Highlight ist der großzügige Eigengarten, in dem Sie die Natur genießen können – perfekt zum Entspannen, Spielen oder für gesellige Grillabende.

 

Lassen Sie sich diese einmalige Gelegenheit nicht entgehen – Ihr neues Traumhaus wartet auf Sie!

 

ZUERST MIETE – NACH 10 JAHREN KAUF MÖGLICH

 

Gerne können Sie das Reihenhaus auch sofort in Ihr Eigentum übernehmen und schon bald in Ihr neues Zuhause einziehen.


Mit Bezahlung des Finanzierungsbeitrages erwerben Sie das Optionsrecht auf Kauf des gemieteten Reihenhauses gem.  den Bestimmungen des Wohnungsgemeinnützigkeitsgesetzes, dem die NEUE EISENSTÄDTER als gemeinnütziger Bauträger unterliegt.


Die Kaufoption kann erstmals nach Ablauf von fünf Jahren nach Abschluss des Mietvertrages ausgeübt werden, indem Sie einen Antrag auf Übertragung des Reihenhauses ins Eigentum stellen. Ein derartiger Antrag kann danach noch zwei Mal jeweils nach Ablauf von fünf Jahren gestellt werden.


Auch die Abwicklung des Kaufes unterliegt den gesetzlichen Bestimmungen des Wohnungsgemeinnützigkeitsgesetzes (Kaufpreisermittlung zum Zeitpunkt des Kaufes etc.).

 

Freifinanziertes Bauprojekt


Da für die Errichtung des gegenständlichen Objektes keine Wohnbauförderung in Anspruch genommen wird, muss hier:

  •  nicht die österreichische Staatsbürgerschaft gegeben sein (EU-Bürger)
  •  keine Einkommensgrenze eingehalten werden. 
  •  der Vertragsnehmer hat jedoch den Hauptwohnsitz zu begründen

 

Folgende Wohneinheiten stehen im Moment zur Verfügung:

 

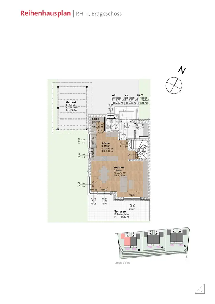
RH 11

Wohnfläche: 111,22 m²

Eigengarten: 292,53 m²

Finanzierungsbeitrag:  € 99.931,62

Gesamtmiete:   € 1.416,20

 

 

Rückzahlbarer Zuschuss 

Miet- bzw. Annuitätenzuschuss

 

Die Neue Eisenstädter unterstützt Sie in den ersten Jahren mit einem gestaffelten Zuschuss zur Miete bzw. zur Annuität. Dadurch profitieren Sie zu Beginn von einer spürbar niedrigeren monatlichen Belastung.Der Zuschuss wird über einen Zeitraum von 9 Jahren gewährt und verringert sich dabei 
schrittweise:


1. Jahr: 2,60 €/m² WNFL pro Monat
2. Jahr: 2,50 €/m² WNFL pro Monat
3. Jahr: 2,30 €/m² WNFL pro Monat
4. Jahr: 2,10 €/m² WNFL pro Monat
5. Jahr: 1,90 €/m² WNFL pro Monat
6. Jahr: 1,60 €/m² WNFL pro Monat
7. Jahr: 1,30 €/m² WNFL pro Monat
8. Jahr: 0,90 €/m² WNFL pro Monat
9. Jahr: 0,50 €/m² WNFL pro Monat

 

Ab dem 10 Jahr ist der Zuschuss vollständig ausgelaufen und der entsprechende Betrag bereits fix in die monatliche Miete bzw. Annuität eingerechnet.

Der gewährte Zuschuss wird mit einem Zinssatz von 3,50 % p.a. verzinst und ist innerhalb einer Laufzeit von maximal 40 Jahren an die Neue Eisenstädter zurückzuzahlen.

Damit bietet dieses Modell einen attraktiven Einstieg mit geringer monatlicher Belastung, während gleichzeitig eine langfristig kalkulierbare Rückzahlung sichergestellt ist.

 

 

Die monatliche Gesamtmiete setzt sich zusammen

  • aus der Miete = der Tilgung der Darlehen (Bankdarlehen)
  • aus den Betriebskosten
  • den Instandhaltungs- und Verwaltungskosten
  • der gesetzlichen Mehrwertsteuer
  • sowie dem PKW-Stellplatz
  •  

Die Betriebskosten beinhalten

  •  Gebäudeversicherung
  •  Grundsteuer
  •  Allgemeinstrom
  •  Müllabfuhr
  •  Schädlingsbekämpfung

 

Die Kosten für Strom, Heizung, Wasser und Kanal etc. werden von den Betreibern direkt mit dem Mieter verrechnet. 

Für später notwendige Instandsetzungsarbeiten am Gebäude und an den Außenanlagen wird ein „Erhaltungs- und Verbesserungsbeitrag (EVB)“ einbehalten. Der Erhaltungs- und Verbesserungsbeitrag wird ebenso wie die Höhe der Verwaltungskosten nach den gesetzlichen Bestimmungen festgelegt.

Die Gesamtmiete enthält weiters die gesetzliche Mehrwertsteuer.

In der Gesamtmiete ist auch der PKW-Stellplatz enthalten

 

Unsere Angaben erfolgen aufgrund der Informationen und Unterlagen, welche uns vom Abgeber oder dessen Beauftragten zur Verfügung gestellt wurden und sind ohne Gewähr.

 

Für Rückfragen und Besichtigung stehe ich Ihnen unter der Tel. Nr. 0664 / 621 20 58  selbstverständlich gerne zur Verfügung.

 

Ihre Immobilienträume.

Unser Ziel!

www.realbrokers.at

Wir weisen darauf hin, dass zwischen dem Vermittler und dem zu vermittelnden Dritten ein familiäres oder wirtschaftliches Naheverhältnis besteht.

Der Immobilienmakler erklärt, dass er – entgegen dem in der Immobilienwirtschaft üblichen Geschäftsgebrauch des Doppelmaklers – einseitig nur für den Vermieter tätig ist.

Ausstattung

Fußbodenheizung, Bad mit Fenster, Dusche, Kabel / Satelliten-TV, Carport, Luftwärmepumpe, Fertigparkett, Südostbalkon / -terrasse, Mechanische Be- und Entlüftung, Toilette, Rollladen, Walmdach, Schlüsselfertig mit Keller, Doppel- / Mehrfachverglasung, Kunststofffenster, Ziegel

Grundrisse

Lageplan

Inhalt wird geladen
Preise
Gesamtmiete
1.416,20 €
Nettomiete
1.287,45 €
Gesamtmiete USt.
128,75 €
Provision
Gemäß Erstauftraggeberprinzip bezahlt der Abgeber die Provision.
Finanzierungsbeitrag
99.931,62 €
Finanzierungsbeitrag
99.931,62 €
Fakten
Objekttyp
Haus
Wohnfläche
111 m²
Terrassenfläche
21 m²
Kellerfläche
58 m²
Gartenfläche
293 m²
Toiletten
2
Terrassen
1
Baujahr
2024
Gebäude
Neubau
Zustand
neuwertig
Status
verfügbar
Energieeffizienz
Energieausweisart
Energiebedarfsausweis
HWB
38,49 kWh/(m²a)
HWB-Klasse
B
FGEE
0,98
FGEE-Klasse
B
Claudia Koller

realbrokers Dienstleistungs GmbH & Co KG

Claudia Koller

Selbständiger Kooperationspartner