Kopfzeile

Freifinanzierte Reihenhäuser in Hainburg an der Donau - SOFORKAUF

Haus zum Kauf in Hainburg an der Donau (2410) / Objektnummer: 15327

Haus zum Kauf in Hainburg an der Donau (2410) 731.437 €

4 Zimmer

1 Badezimmer

111 m² Wohnfläche

296 m² Außenfläche

TerrasseDuscheRolllädenCarportStellplatzFußbodenheizungGartenflächeKellerflächeKabel-TV

Freifinanzierte Reihenhäuser in Hainburg an der Donau - SOFORTKAUF

 

Ihr neues Zuhause in Hainburg an der Donau: Modern, geräumig und in naturnaher Umgebung

 

Die lichtdurchfluteten Reihenhäuser bieten nicht nur ausreichend Platz für die ganze Familie, sondern auch jede Menge Komfort. Ein echtes Highlight ist der großzügige Eigengarten, in dem Sie die Natur genießen können – perfekt zum Entspannen, Spielen oder für gesellige Grillabende.

 

Lassen Sie sich diese einmalige Gelegenheit nicht entgehen – Ihr neues Traumhaus wartet auf Sie!

 

 

Gerne können Sie das Reihenhaus auch in Miete mit Kaufoption übernehmen und schon bald in Ihr neues Zuhause einziehen.


 

Freifinanziertes Bauprojekt


Da für die Errichtung des gegenständlichen Objektes keine Wohnbauförderung in Anspruch genommen wird, muss hier:

  •  nicht die österreichische Staatsbürgerschaft gegeben sein (EU-Bürger)
  •  keine Einkommensgrenze eingehalten werden. 
  •  der Eigentümer des Reihenhauses hat den Hauptwohnsitz zu begründen

 

Folgende Wohneinheiten stehen im Moment zur Verfügung:

 

RH 1

Wohnfläche: 111,17 m²

Eigengarten: 277,76 m²

Kaufpreis: € 732.092,59

Betriebskosten: € 209,78

 

RH 5

Wohnfläche: 111,17 m²

Eigengarten: 274,43 m²

Kaufpreis: € 731.201,53

Betriebskosten: € 209,78

 

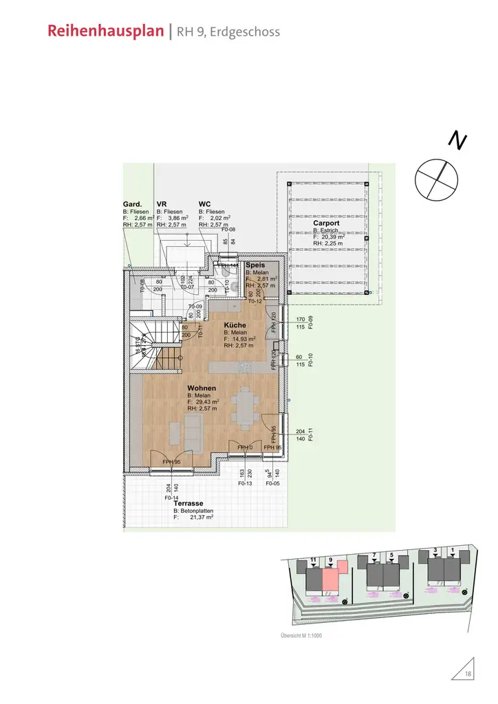
RH 9

Wohnfläche: 111,22 m²

Eigengarten: 274,27 m²

Kaufpreis: € 731.437,20

Betriebskosten: € 209,86

 

RH 11

Wohnfläche: 111,22 m²

Eigengarten: 292,53 m²

Kaufpreis: € 733.469,17

Betriebskosten: € 209,86

 

Der KFZ-Abstellplatz ist im Kaufpreis enthalten.

 

Die Betriebskosten beinhalten

  •  Gebäudeversicherung
  •  Grundsteuer
  •  Allgemeinstrom
  •  Müllabfuhr
  •  Schädlingsbekämpfung

 

Die Kosten für Strom, Heizung, Wasser und Kanal etc. werden von den Betreibern direkt mit dem Eigentümer verrechnet. 

Für später notwendige Instandsetzungsarbeiten am Gebäude und an den Außenanlagen wird ein „Erhaltungs- und Verbesserungsbeitrag (EVB)“ einbehalten. Der Erhaltungs- und Verbesserungsbeitrag wird ebenso wie die Höhe der Verwaltungskosten nach den gesetzlichen Bestimmungen festgelegt.

 

Unsere Angaben erfolgen aufgrund der Informationen und Unterlagen, welche uns vom Abgeber oder dessen Beauftragten zur Verfügung gestellt wurden und sind ohne Gewähr.

 

Für Rückfragen und Besichtigung stehe ich Ihnen unter der Tel. Nr. 0664 / 621 20 58  selbstverständlich gerne zur Verfügung.

 

Ihre Immobilienträume.

Unser Ziel!

www.realbrokers.at

Wir weisen darauf hin, dass zwischen dem Vermittler und dem zu vermittelnden Dritten ein familiäres oder wirtschaftliches Naheverhältnis besteht.

Ausstattung

Fußbodenheizung, Bad mit Fenster, Dusche, Kabel / Satelliten-TV, Carport, Luftwärmepumpe, Fertigparkett, Südostbalkon / -terrasse, Mechanische Be- und Entlüftung, Toilette, Rollladen, Walmdach, Schlüsselfertig mit Keller, Doppel- / Mehrfachverglasung, Kunststofffenster, Ziegel

Grundrisse

Lageplan

Inhalt wird geladen
Preise
Kaufpreis
731.437,20 €
Betriebskosten netto
190,78 €
Betriebskosten brutto
209,86 €
Betriebskosten brutto
190,78 €
Monatlich gesamt brutto
209,86 €
Monatliche Kosten USt.
19,08 €
Fakten
Objekttyp
Haus
Wohnfläche
111 m²
Terrassenfläche
21 m²
Kellerfläche
58 m²
Gartenfläche
274 m²
Toiletten
2
Terrassen
1
Baujahr
2024
Gebäude
Neubau
Zustand
neuwertig
Status
verfügbar
Energieeffizienz
Energieausweisart
Energiebedarfsausweis
HWB
38,49 kWh/(m²a)
HWB-Klasse
B
FGEE
0,98
FGEE-Klasse
B
Claudia Koller

realbrokers Dienstleistungs GmbH & Co KG

Claudia Koller

Selbständiger Kooperationspartner