Kopfzeile

neu — Freifinanzierte Reihenhäuser in Lanzenkirchen - Ortsteil Kleinwolkersdorf

Haus zur Miete in Lanzenkirchen (2821) / Objektnummer: 16746

Haus zur Miete in Lanzenkirchen (2821) 1.386,88 €

4 Zimmer

1 Badezimmer

112 m² Wohnfläche

62 m² Außenfläche

TerrasseDuscheBadewanneRolllädenCarportStellplatzAußenstellplatzFußbodenheizungGartenflächeFliesenKabel-TV

Freifinanzierte Reihenhäuser in Lanzenkirchen - Ortsteil Kleinwolkersdorf

 

Nach den erfolgreichen Projekten in der Golfstraße freuet es uns, Ihnen unser neuestes Projekt in Lanzenkirchen präsentieren zu dürfen: Sieben wunderschöne Reihenhäuser, die Ihnen das perfekte Zuhause bieten. Mit einer modernen und umweltfreundlichen Luft-Wärmepumpe als Heizungsart, profitieren Sie von einer effizienten und nachhaltigen Lösung für Ihr neues Eigenheim.


Lanzenkirchen selbst bietet die ideale Kombination aus Ruhe und urbaner Nähe. Umgeben von wunderschöner Natur, aber dennoch mit einer hervorragenden Anbindung an Wiener Neustadt und die Hauptstadt Wien, ist es der perfekte Ort für Familien, Berufspendler und Naturliebhaber. 
Lokale Einrichtungen wie Schulen, Kindergärten und Einkaufsmöglichkeiten sorgen dafür, dass Ihnen und Ihrer Familie alles Wichtige direkt vor der Haustüre zur Verfügung steht.

 

Lassen Sie sich diese einmalige Gelegenheit nicht entgehen – Ihr neues Traumhaus wartet auf Sie!

 

ZUERST MIETE – NACH 10 JAHREN KAUF MÖGLICH

 

Gerne können Sie das Reihenhaus auch sofort in Ihr Eigentum übernehmen und schon bald in Ihr neues Zuhause einziehen.

 

 

Mit Bezahlung des Finanzierungsbeitrages erwerben Sie das Optionsrecht auf Kauf des gemieteten Reihenhauses gem. den Bestimmungen des Wohnungsgemeinnützigkeitsgesetzes, dem die NEUE EISENSTÄDTER als gemeinnütziger Bauträger unterliegt.


Die Kaufoption kann erstmals nach Ablauf von zehn Jahren nach Abschluss des Mietvertrages ausgeübt werden, indem Sie einen Antrag auf Übertragung des Reihenhauses ins Eigentum stellen. Ein derartiger Antrag kann danach noch zwei Mal jeweils nach Ablauf von weiteren fünf Jahren gestellt werden.


Auch die Abwicklung des Kaufes unterliegt den gesetzlichen Bestimmungen des Wohnungsgemeinnützigkeitsgesetzes (Kaufpreisermittlung zum Zeitpunkt des Kaufes etc.).

 

Freifinanziertes Bauprojekt


Da für die Errichtung des gegenständlichen Objektes keine Wohnbauförderung in Anspruch genommen wird, muss hier:

  •  nicht die österreichische Staatsbürgerschaft gegeben sein (EU-Bürger)
  •  keine Einkommensgrenze eingehalten werden. 
  •  Der Vertragsnehmer hat jedoch den Hauptwohnsitz zu begründen!

 

Folgende Wohneinheiten stehen im Moment zur Verfügung:

 

RH1

Wohnfläche: 111,77 m²

Gartenfläche: 120,65 m²

Finanzierungsbeitrag: € 123.083,23

Gesamtmiete: € 1.389,83

 

RH2

Wohnfläche: 111,77 m²

Gartenfläche: 42,48 m²

Finanzierungsbeitrag: € 87.298,11

Gesamtmiete: € 1.386,85

 

RH3

Wohnfläche: 111,77 m²

Gartenfläche: 43,07 m²

Finanzierungsbeitrag: € 87.559,83

Gesamtmiete: € 1.386,87

 

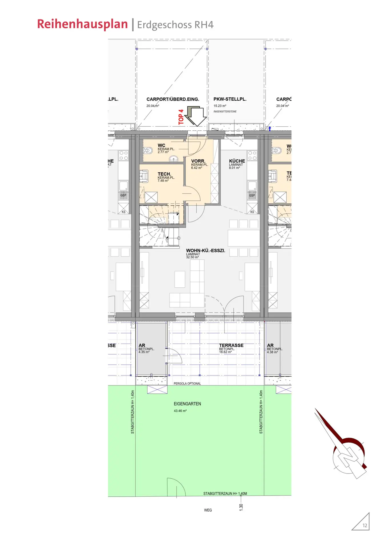
RH4

Wohnfläche: 111,77 m²

Gartenfläche: 43,46 m²

Finanzierungsbeitrag: € 87.732,83

Gesamtmiete: € 1.386,88

 

RH5

Wohnfläche: 111,77 m²

Gartenfläche: 43,63 m²

Finanzierungsbeitrag: € 87.808,25

Gesamtmiete: € 1.386,89

 

RH6

Wohnfläche: 111,77 m²

Gartenfläche: 52,67 m²

Finanzierungsbeitrag: € 91.818,38

Gesamtmiete: € 1.387,22

 

RH7

Wohnfläche: 111,77 m²

Gartenfläche: 156,48 m²

Finanzierungsbeitrag: € 138.977,37

Gesamtmiete: € 1.391,15

 

Die monatliche Gesamtmiete setzt sich zusammen

  • aus der Miete = der Tilgung der Darlehen (Bankdarlehen)
  • aus den Betriebskosten
  • den Instandhaltungs- und Verwaltungskosten
  • der gesetzlichen Mehrwertsteuer
  • sowie den PKW-Stellplätzen

 

Die Betriebskosten beinhalten

  •  Gebäudeversicherung
  •  Grundsteuer
  •  Kaltwasser und Kanal
  •  Allgemeinstrom
  •  Müllabfuhr und Winterdienst für Privatstraße und Gehweg
  •  Schädlingsbekämpfung
  •  Hausbesorger

 

Die Kosten für Strom und Heizung werden von den Betreibern direkt mit dem Mieter verrechnet.

Für später notwendige Instandsetzungsarbeiten am Gebäude und an den Außenanlagen wird ein „Erhaltungs- und Verbesserungsbeitrag (EVB)“ einbehalten. Der Erhaltungs- und Verbesserungsbeitrag wird ebenso wie die Höhe der Verwaltungskosten nach den gesetzlichen Bestimmungen festgelegt.

Die Gesamtmiete enthält weiters die gesetzliche Mehrwertsteuer.

 

Unsere Angaben erfolgen aufgrund der Informationen und Unterlagen, welche uns vom Abgeber oder dessen Beauftragten zur Verfügung gestellt wurden und sind ohne Gewähr.

 

Für Rückfragen und Besichtigung stehe ich Ihnen unter der Tel. Nr. 0664 / 621 20 58  selbstverständlich gerne zur Verfügung.

 

Ihre Immobilienträume.

Unser Ziel!

www.realbrokers.at

Wir weisen darauf hin, dass zwischen dem Vermittler und dem zu vermittelnden Dritten ein familiäres oder wirtschaftliches Naheverhältnis besteht.

Der Immobilienmakler erklärt, dass er – entgegen dem in der Immobilienwirtschaft üblichen Geschäftsgebrauch des Doppelmaklers – einseitig nur für den Vermieter tätig ist.

Ausstattung

Fliesen, Laminat, Fußbodenheizung, Bad mit Fenster, Badewanne, Dusche, Kabel / Satelliten-TV, Carport, Parkplatz, Luftwärmepumpe, Südwestbalkon / -terrasse, Mechanische Be- und Entlüftung, Toilette, Rollladen, Satteldach, Massiv, Schlüsselfertig mit Bodenplatte, Doppel- / Mehrfachverglasung, Kunststofffenster, Ziegel

Grundrisse

Lageplan

Inhalt wird geladen
Preise
Gesamtmiete
1.386,88 €
Nettomiete
1.260,80 €
Gesamtmiete USt.
126,08 €
Provision
Gemäß Erstauftraggeberprinzip bezahlt der Abgeber die Provision.
Finanzierungsbeitrag
87.732,83 €
Finanzierungsbeitrag
87.732,83 €
Fakten
Objekttyp
Haus
Wohnfläche
112 m²
Terrassenfläche
19 m²
Gartenfläche
43 m²
Toiletten
2
Terrassen
1
Baujahr
2024
Gebäude
Neubau
Zustand
neuwertig
Status
verfügbar
Energieeffizienz
Energieausweisart
Energiebedarfsausweis
HWB
32,60 kWh/(m²a)
HWB-Klasse
B
FGEE
0,36
FGEE-Klasse
A++
Claudia Koller

realbrokers Dienstleistungs GmbH & Co KG

Claudia Koller

Selbständiger Kooperationspartner