Kopfzeile

Freifinanzierte Reihenhäuser in Sankt Margarethen - MIETE MIT KAUFOPTION

Haus zur Miete in Sankt Margarethen im Burgenland (7062) / Objektnummer: 16450

Haus zur Miete in Sankt Margarethen im Burgenland (7062) 1.168,34 €

4 Zimmer

1 Badezimmer

123 m² Wohnfläche

58 m² Außenfläche

TerrasseDuscheBadewanneRolllädenCarportStellplatzAußenstellplatzFußbodenheizungGartenflächeFliesen

Freifinanzierte Reihenhäuser in Sankt Margarethen - MIETE MIT KAUFOPTION

 

Ihr neues Zuhause:  Modern, geräumig und in naturnaher Umgebung

 

Die Häuser bestehen aus einem Erd- und einem Obergeschoss. Das Kellergeschoss wird durch eine großzügige Lagerfläche sowie einem Technikraum im Erdgeschoss ersetzt, wodurch genügend Stauraum geboten wird. Bei der Ausstattung aller Reihenhäuser stehen Optik und Qualität im Vordergrund. Für jedes Haus wird die Leerverrohrung einer PV-Anlage automatisch errichtet. Weiters sind alle Häuser mit einem überdachten PKW-Stellplatz direkt vor dem Haus ausgestattet. Auf der eigenen Terrasse direkt vor dem Haus, können die Bewohner den Alltag gemütlich ausklingen lassen. 

 

Lassen Sie sich diese einmalige Gelegenheit nicht entgehen – Ihr neues Traumhaus wartet auf Sie!

 

ZUERST MIETE – NACH 10 JAHREN KAUF MÖGLICH

 

Mit Bezahlung des Finanzierungsbeitrages erwerben Sie das Optionsrecht auf Kauf des gemieteten Reihenhauses gem.  den Bestimmungen des Wohnungsgemeinnützigkeitsgesetzes, dem die NEUE EISENSTÄDTER als gemeinnütziger Bauträger unterliegt.


Die Kaufoption kann erstmals nach Ablauf von zehn Jahren nach Abschluss des Mietvertrages ausgeübt werden, indem Sie einen Antrag auf Übertragung des Reihenhauses ins Eigentum stellen. Ein derartiger Antrag kann danach noch zwei Mal jeweils nach Ablauf von fünf Jahren gestellt werden.


Auch die Abwicklung des Kaufes unterliegt den gesetzlichen Bestimmungen des Wohnungsgemeinnützigkeitsgesetzes (Kaufpreisermittlung zum Zeitpunkt des Kaufes etc.).

 

Freifinanziertes Bauprojekt


Da für die Errichtung des gegenständlichen Objektes keine Wohnbauförderung in Anspruch genommen wird, muss hier:

  •  nicht die österreichische Staatsbürgerschaft gegeben sein (EU-Bürger)
  •  keine Einkommensgrenze eingehalten werden. 
  •  Der Vertragsnehmer hat jedoch den Hauptwohnsitz zu begründen!

 

Folgende Wohneinheiten stehen im Moment zur Verfügung:

 

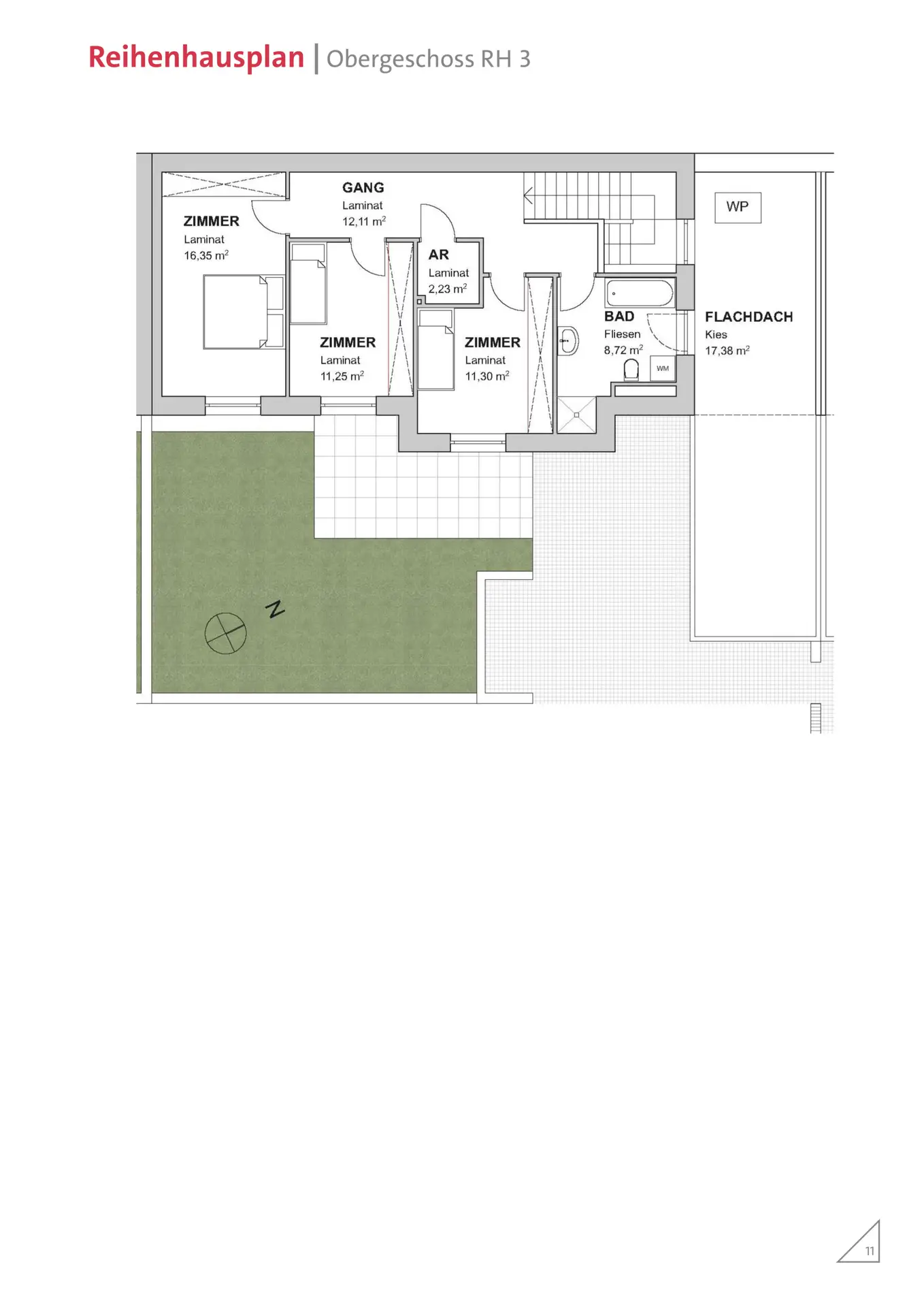
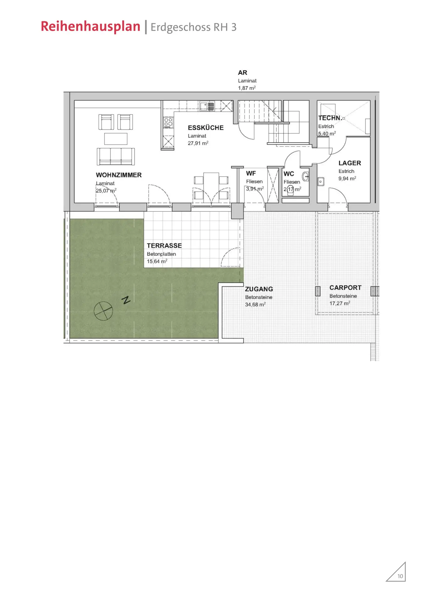
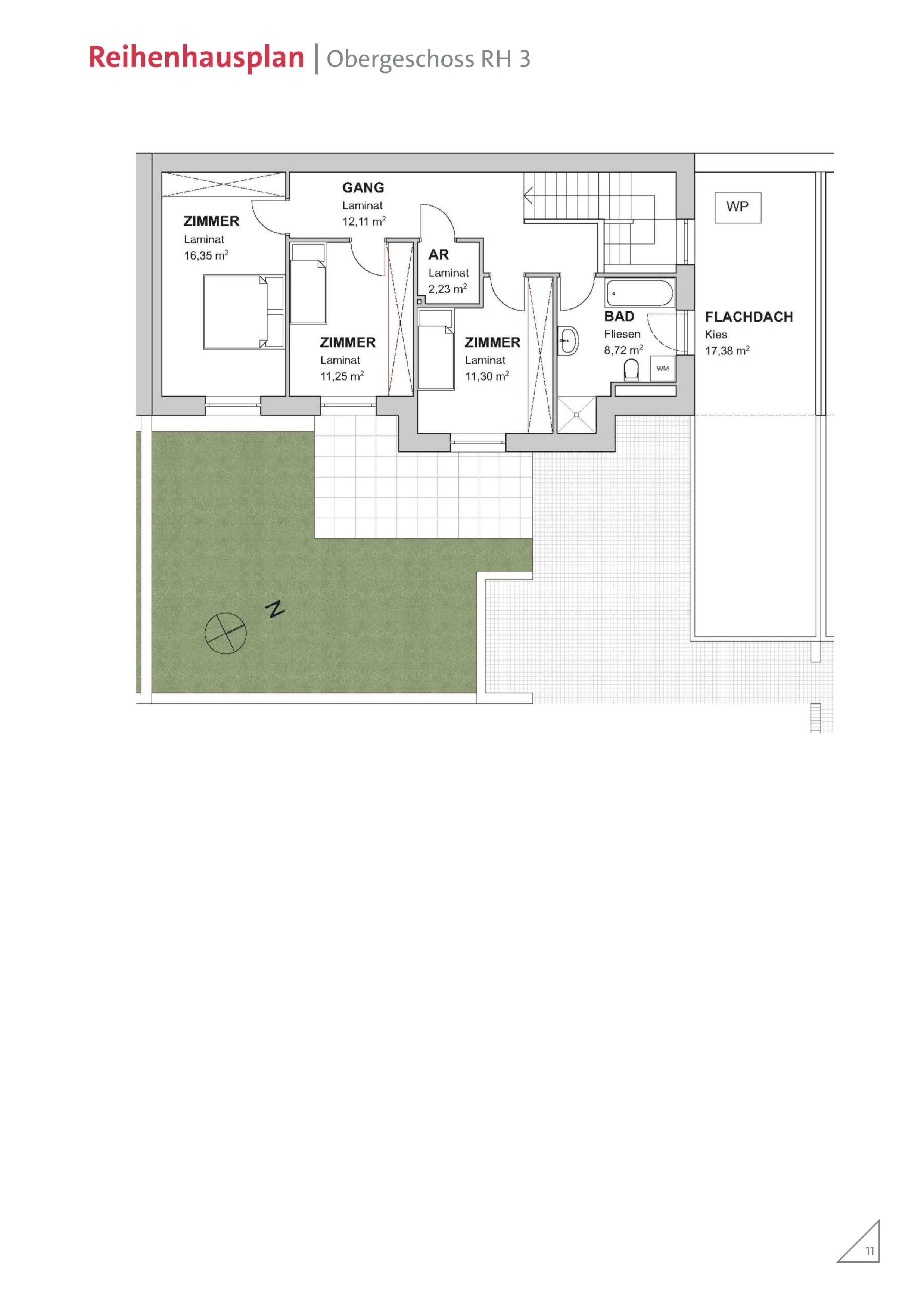
RH 3

Wohnfläche: 122,87 m²

Eigengarten: 42,55 m²

Finanzierungsbeitrag: € 70.582,45

Gesamtmiete: € 1.168,34

 

 

Die monatliche Gesamtmiete setzt sich zusammen

  • aus der Miete = der Tilgung der Darlehen (Bankdarlehen)
  • aus den Betriebskosten
  • den Instandhaltungs- und Verwaltungskosten
  • der gesetzlichen Mehrwertsteuer
  • sowie den PKW-Stellplätzen

 

Die Betriebskosten beinhalten

  •  Gebäudeversicherung
  •  Grundsteuer
  •  Winterdienst
  •  Anlagenbetreuung für die allgemeine Grünfläche
  •  Schädlingsbekämpfung

 

Die Kosten für Strom, Heizung, Müll, Kanal und Wasser werden von den Betreibern direkt mit dem Mieter verrechnet. 

Für später notwendige Instandsetzungsarbeiten am Gebäude und an den Außenanlagen wird ein „Erhaltungs- und Verbesserungsbeitrag (EVB)“ einbehalten. Der Erhaltungs- und Verbesserungsbeitrag wird ebenso wie die Höhe der Verwaltungskosten nach den gesetzlichen Bestimmungen festgelegt.

Die Gesamtmiete enthält weiters die gesetzliche Mehrwertsteuer.

In der Gesamtmiete ist auch die PKW-Stellplätze enthalten

 

Unsere Angaben erfolgen aufgrund der Informationen und Unterlagen, welche uns vom Abgeber oder dessen Beauftragten zur Verfügung gestellt wurden und sind ohne Gewähr.

 

Für Rückfragen und Besichtigung stehe ich Ihnen unter der Tel. Nr. 0664 / 621 20 58  selbstverständlich gerne zur Verfügung.

 

Ihre Immobilienträume.

Unser Ziel!

www.realbrokers.at

Wir weisen darauf hin, dass zwischen dem Vermittler und dem zu vermittelnden Dritten ein familiäres oder wirtschaftliches Naheverhältnis besteht.

Der Immobilienmakler erklärt, dass er – entgegen dem in der Immobilienwirtschaft üblichen Geschäftsgebrauch des Doppelmaklers – einseitig nur für den Vermieter tätig ist.

Ausstattung

Estrich, Fliesen, Laminat, Fußbodenheizung, Bad mit Fenster, Badewanne, Dusche, Carport, Parkplatz, Luftwärmepumpe, Südostbalkon / -terrasse, Mechanische Be- und Entlüftung, Toilette, Rollladen, Satteldach, Massiv, Schlüsselfertig mit Bodenplatte, Doppel- / Mehrfachverglasung, Kunststofffenster, Bad mit WC

Grundrisse

Lageplan

Inhalt wird geladen
Preise
Gesamtmiete
1.168,34 €
Nettomiete
1.062,13 €
Gesamtmiete USt.
106,21 €
Provision
Gemäß Erstauftraggeberprinzip bezahlt der Abgeber die Provision.
Finanzierungsbeitrag
70.582,45 €
Finanzierungsbeitrag
70.582,45 €
Fakten
Objekttyp
Haus
Wohnfläche
123 m²
Terrassenfläche
16 m²
Gartenfläche
43 m²
Toiletten
2
Terrassen
1
Baujahr
2023
Gebäude
Neubau
Zustand
Erstbezug
Status
verfügbar
Energieeffizienz
Energieausweisart
Energiebedarfsausweis
HWB
31,10 kWh/(m²a)
HWB-Klasse
B
FGEE
0,67
FGEE-Klasse
A+
Claudia Koller

realbrokers Dienstleistungs GmbH & Co KG

Claudia Koller

Selbständiger Kooperationspartner