Geförderte Genossenschafts-Doppelhaushälfte mit Eigengarten - MIETE MIT KAUFOPTION

Lage: 3204 Kirchberg an der Pielach | Niederösterreich

Beschreibung

Geförderte Doppelhaushälfte in Kirchberg an der Pielach

 

In 3204 Kirchberg an der Pielach, Stolzgasse 3 wurde eine Wohnhausanlage mit insgesamt 12 Wohnungen und zwei Doppelhaushälften in Niedrigenergiebauweise und kontrollierter Wohnraumlüftung mit Wärmerückgewinnung errichtet. Die Wärmebereitstellung und Warmwasseraufbereitung erfolgt 
mittels biogener Fernwärme und einer Photovoltaikanlage. 


Jede Wohneinheit verfügt über eine Terrasse, eine Loggia oder einen Balkon inklusive einer Außenbeschattung. Den Wohnungen im Erdgeschoss und den Doppelhaushälften sind Eigengärten inklusive Gerätehaus zugeteilt. Es wurden insgesamt 24 PKW-Stellplätze in der Garage und vier PKW-Stellplätze im Freien errichtet.

Jeder Wohnung wurde ein Garagenstellplatz zugeteilt. Die Doppelhaushälften erhalten je einen PKW-Abstellplatz in der Garage und im Freien. Die restlichen Stellplätze können nach Bedarf angemietet werden. Auf Sonderwunsch und Kosten des Mieters kann jeder Stellplatz mit einer Ladesteckdose 
für ein Elektroauto ausgestattet werden. 


Die Gemeinde Kirchberg an der Pielach liegt im Mostviertel in Niederösterreich. Durch die waldreiche Lage ist die Gemeinde im Sommer sowie auch im Winter ein echtes Erholungsgebiet im Voralpenland. Für die Bildung sorgen ein Landeskindergarten, eine Volks- und Sonderschule, eine Neue Mittelschule und eine Polytechnische Schule. Diverse Fachärzte mit Ordinationen, eine Apotheke und eine Hebamme vor Ort kümmern sich um das gesundheitliche Wohl der EinwohnerInnen. Kirchberg an der Pielach hat auch viele Freizeitattraktionen zu bieten wie das Erlebnisbad und diverse Sportmöglichkeiten wie Reiten und Tennis. Durch die Mariazellerbahn „Die Himmelstreppe“ und Busanbindungen sind diverse Ziele leicht erreichbar. Mit dem PKW ist man in etwa 25 Minuten in der Landeshauptstadt St. Pölten. 


 

Diese Wohnhausanlage wurde vom Land Niederösterreich gefördert! Die Mieter müssen den Förderkriterien entsprechen und hier ihren Hauptwohnsitz begründen.

MIETE  mit  KAUFRECHT

 

Mit Bezahlung des Finanzierungsbeitrages erwerben Sie das Optionsrecht zum Kauf der gemieteten Wohnung.

 

Folgende Wohneinheiten stehen zur Verfügung:

 

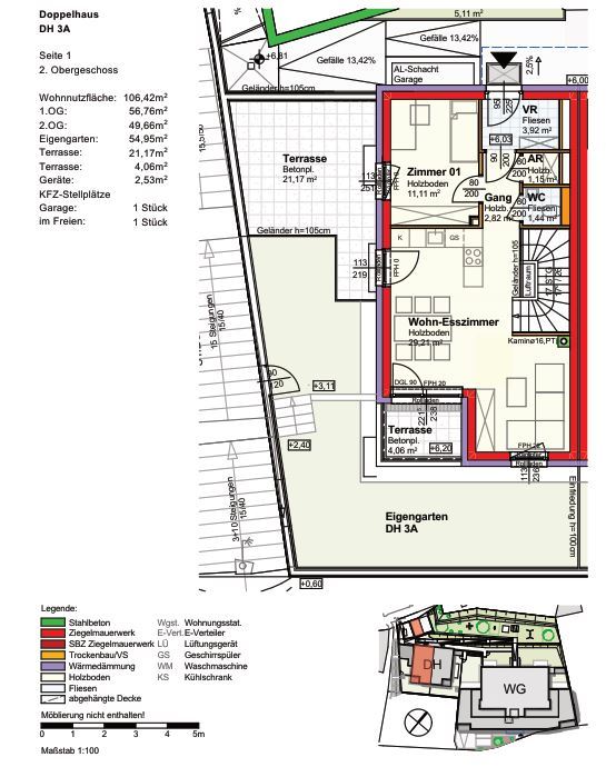
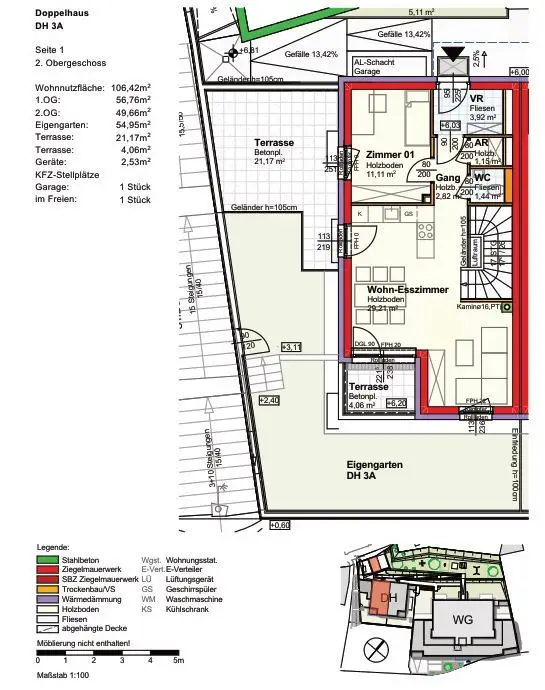
DH 3A

Wohnfläche: 106,42 m²

Eigengarten: 55,00 m²

Finanzierungsbeitrag: € 49.509,24

Miete: € 1.029,24   inklusive Stellplatz

 

 

 

Zudem gibt es noch zehn PKW-Stellplätze in der Garage und zwei Stellplätze im Freien, welche zusätzlich gemietet werden können.

 

 

In den Mietkosten sind Betriebskosten, Erhaltungs-und Verbesserungsbeitrag, Verwaltungskosten und Ust. enthalten. Energiekosten, wie Strom, Heizung und Warmwasser wird direkt mit den Betreibern abgerechnet.

 

Betriebskosten:   Die Gemeinnützige Bauvereinigung wird vorerst in der Funktion als Liegenschaftseigentümerin (Bauberechtigte) und Verwalterin die mit der Liegenschaft verbundenen Betriebskostenaufwendungen pro Kalenderjahr im Vorhinein schätzen und in monatlichen Teilbeträgen zur Vorschreibung bringen. Zu den Betriebskostenaufwendungen gehören insbesondere:
Öffentliche Abgaben (Kanal-, Müll-, Wassergebühr, Grundsteuer), Versicherungsaufwand (Feuer-, Haftpflicht-, Leitungswasser- u. Sturmschadenversicherung jeweils zum Neuwert), allgemeine Stromkosten (Stiegenhaus, Keller, Außenbeleuchtung), Kosten der Betreuung und Erhaltung der allgemeinen Außenanlagen (z. B. Kinderspielplätze, Grünflächen, Müllplätze u.dgl.), Rauchfangkehrergebühr, gegebenenfalls Kosten einer Liftanlage etc.

Im Betriebskostenakonto sind die Kosten einer Hausbetreuung (Stiegenhausreinigung, Winterdienst, Grünflächenpflege) nicht berücksichtigt. Je nach Beauftragung dieser Arbeiten (eine oder mehrere Personen, gegebenenfalls auch eine  Firma) sind diese Kosten variabel.
 

 

Wohnzuschuss (abhängig vom Familieneinkommen) möglich.

 

Für Rückfragen und Besichtigung stehe ich Ihnen unter der Tel. Nr. 0664 / 621 20 58  selbstverständlich gerne zur Verfügung.

 

Unsere Angaben erfolgen aufgrund der Informationen und Unterlagen, welche uns vom Abgeber oder dessen Beauftragten zur Verfügung gestellt wurden und sind ohne Gewähr.

 

Ihre Immobilienträume.

Unser Ziel!

www.realbrokers.at

 

Wir weisen darauf hin, dass zwischen dem Vermittler und dem zu vermittelnden Dritten ein familiäres oder wirtschaftliches Naheverhältnis besteht.

Der Immobilienmakler erklärt, dass er – entgegen dem in der Immobilienwirtschaft üblichen Geschäftsgebrauch des Doppelmaklers – einseitig nur für den Vermieter tätig ist.

Lage und Verkehrsanbindung

St. Pölten Land

Downloads

Lagepläne

Plan 0

Fakten

Objektnummer:
16413
Objekttyp:
Haus
Terrasse:
2
Balkonfläche:
80,18 m²
Wohnfläche:
106,42 m²
Gartenfläche:
54,95 m²
Zimmer:
4
Badezimmer:
1
Toilette:
2
Baujahr:
2021
Neubau:
Ja
Zustand:
Neuwertig
Verfügbarkeit:
Verfügbar

Preisdetails

Nettomiete:
936,25 €
Bruttomiete:
936,25 €
Gesamtmiete:
1.029,88 €
Provision:
Gemäß Erstauftraggeberprinzip bezahlt der Abgeber die Provision. BMM
Monatliche Kosten USt.:
93,63 €
Miete Ust.:
93,63 €

Energieeffizienz

HWB:
31.90 kWh/(m²*a)
Klasse HWB:
B
fGEE:
0.60
Klasse fGEE:
A+
Energieausweisart:
Energiebedarfsausweis

Ansprechpartner

Claudia Koller

Selbständiger Kooperationspartner

Anfrage
Max. 500 Zeichen
Ich habe die Datenschutzvereinbarung gelesen und verstanden, und ich stimme der Verarbeitung meiner persönlichen Daten wie darin beschrieben zu. *