Kopfzeile

Geförderte Genossenschafts-Wohnungen mit Kaufoption

Wohnung zur Miete in Palterndorf (2182) / Objektnummer: 16590

Wohnung zur Miete in Palterndorf (2182) 697,68 €

2 Zimmer

1 Badezimmer

56 m² Wohnfläche

11 m² Außenfläche

AufzugTerrasseBadewanneRolllädenFahrradraumStellplatzAußenstellplatzFußbodenheizungKellerflächeFliesenDachgeschossKabel-TV

Geförderte Genossenschafts-Wohnungen mit Kaufoption

 

Die Dobermannsdorfer Straße liegt in einem gepflegten Wohngebiet, in dem Einkaufsmöglichkeiten, Ärzte und Schulen in wenigen Minuten erreichbar sind. 

 

In Palterndorf, Dobermannsdorfer Straße 394, entsteht eine moderne Wohnhausanlage mit 16 geförderten Wohnungen in zeitgemäßer Niedrigenergiebauweise. Acht der Wohnungen sind barrierefrei gestaltet und werden zur Miete angeboten.
Die weiteren acht Wohneinheiten sind barrierefrei anpassbar konzipiert und bieten die Möglichkeit zum späteren Erwerb – kein Soforteigentum.

Die 2- bis 3-Zimmer-Wohnungen bieten Wohnnutzflächen von ca. 51 bis 72 m² und verfügen jeweils über eine eigene Freifläche  in Form von Terrasse, Loggia, Balkon oder Dachterrasse.  

Jeder Wohnung ist ein PKW-Abstellplatz im Freien zugeordnet. Zusätzlich stehen ein  Fahrradabstellraum, ein Müllraum sowie ein gemeinschaftlicher Kinderspielplatz zur  Verfügung.

Ein zukunftsorientiertes Energiekonzept mit Luft-Wasser-Wärmepumpe, Photovoltaikanlage, Fußbodenheizung und kontrollierter Wohnraumlüftung mit Wärmerückgewinnung sorgt für nachhaltigen Wohnkomfort.

 

Palterndorf ist eine lebendige Gemeinde im Bezirk Gänserndorf und besticht durch ihre ruhige, naturnahe Lage mit guter Anbindung an umliegende Städte. Die Gemeinde hat ca. 1.200 Einwohner und bietet eine angenehme Mischung aus ländlichem 
Charme und zeitgemäßer Infrastruktur.

 

Diese Wohnhausanlage wurde mit einer Bundesförderung gefördert! Die Mieter müssen den Förderkriterien entsprechen und hier ihren Hauptwohnsitz begründen.

 

MIETE  mit  KAUFRECHT

 

Fertigstellung: voraussichtlich 2. Quartal 2026

 

Mit Bezahlung des Finanzierungsbeitrages erwerben Sie das Optionsrecht zum Kauf der gemieteten Wohneinheit.

 

Folgende Wohneinheiten stehen zur Verfügung:

 

W1-04

Wohnfläche 51,70 m²

Eigengarten: 26,92 m²

Finanzierungsbeitrag: € 19.113,27

Miete: € 607,05

 

W1-07

Wohnfläche 72,31 m²

Finanzierungsbeitrag: € 27.792,03

Miete: € 863,75

 

W1-10

Wohnfläche 51,70 m²

Finanzierungsbeitrag: € 20.570,86

Miete: € 616,86

 

W1-12

Wohnfläche 71,42 m²

Finanzierungsbeitrag: € 17.433,78

Miete: € 784,76

 

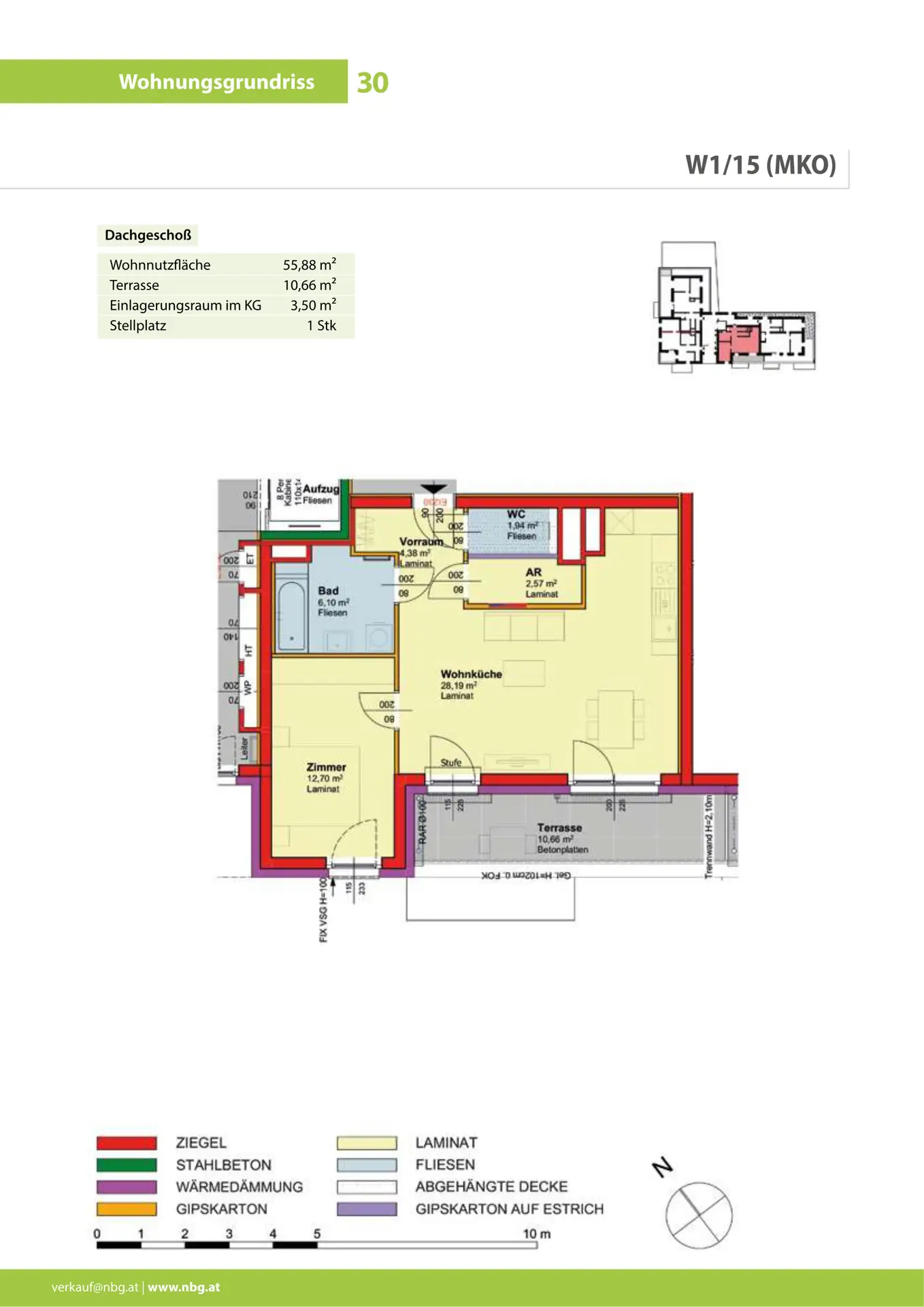
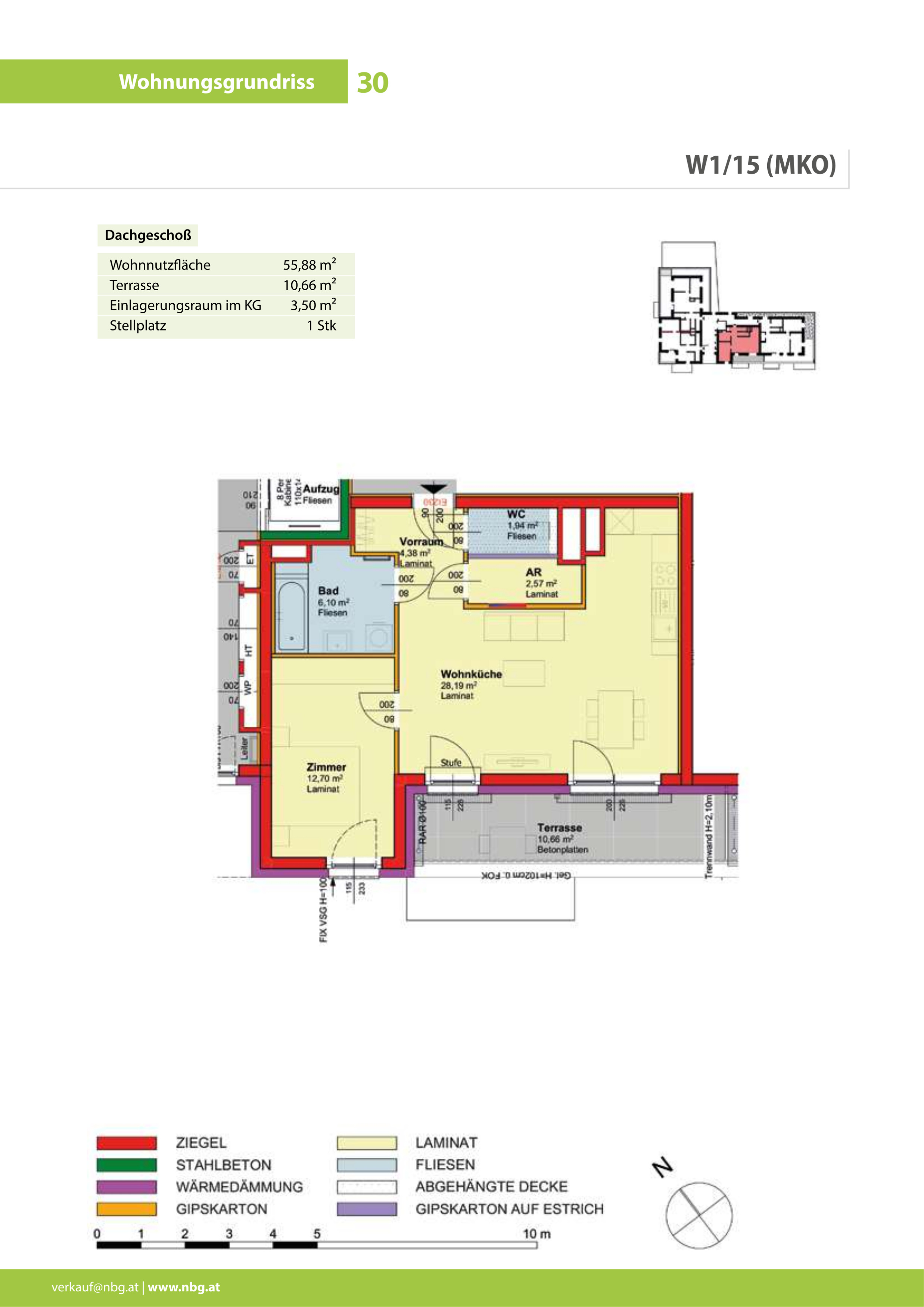
W1-15

Wohnfläche 55,88 m²

Finanzierungsbeitrag: € 26.364,31

Miete: € 697,67

 

 

Für den KFZ-Abstellplatz kommen noch € 20,00 zur Miete dazu

 

Wohnzuschuss (abhängig vom Familieneinkommen) möglich.

 

 

In den Mietkosten sind Betriebskosten, Erhaltungs-und Verbesserungsbeitrag, Verwaltungskosten und Ust. enthalten. Energiekosten, wie Strom, Heizung und Warmwasser wird direkt mit den Betreibern abgerechnet.

 

Betriebskosten:   Die Gemeinnützige Bauvereinigung wird vorerst in der Funktion als Liegenschaftseigentümerin (Bauberechtigte) und Verwalterin die mit der Liegenschaft verbundenen Betriebskostenaufwendungen pro Kalenderjahr im Vorhinein schätzen und in monatlichen Teilbeträgen zur Vorschreibung bringen. Zu den Betriebskostenaufwendungen gehören insbesondere:
Öffentliche Abgaben (Kanal-, Müll-, Wassergebühr, Grundsteuer), Versicherungsaufwand (Feuer-, Haftpflicht-, Leitungswasser- u. Sturmschadenversicherung jeweils zum Neuwert), allgemeine Stromkosten (Stiegenhaus, Keller, Außenbeleuchtung), Kosten der Betreuung und Erhaltung der allgemeinen Außenanlagen (z. B. Kinderspielplätze, Grünflächen, Müllplätze u.dgl.), Rauchfangkehrergebühr, gegebenenfalls Kosten einer Liftanlage etc.

Im Betriebskostenakonto sind die Kosten einer Hausbetreuung (Stiegenhausreinigung, Winterdienst, Grünflächenpflege) nur als Schätzung berücksichtigt. Je nach Beauftragung dieser Arbeiten (eine oder mehrere Personen, gegebenenfalls auch eine  Firma) sind diese Kosten variabel.
 

 

Für Rückfragen und Besichtigung stehe ich Ihnen unter der Tel. Nr. 0664 / 621 20 58  selbstverständlich gerne zur Verfügung.

 

Unsere Angaben erfolgen aufgrund der Informationen und Unterlagen, welche uns vom Abgeber oder dessen Beauftragten zur Verfügung gestellt wurden und sind ohne Gewähr.

 

 

Ihre Immobilienträume.

Unser Ziel!

www.realbrokers.at

Wir weisen darauf hin, dass zwischen dem Vermittler und dem zu vermittelnden Dritten ein familiäres oder wirtschaftliches Naheverhältnis besteht.

Der Immobilienmakler erklärt, dass er – entgegen dem in der Immobilienwirtschaft üblichen Geschäftsgebrauch des Doppelmaklers – einseitig nur für den Vermieter tätig ist.

Ausstattung

Fliesen, Laminat, Fußbodenheizung, Personenaufzug, Badewanne, Kabel / Satelliten-TV, Parkplatz, Luftwärmepumpe, Südwestbalkon / -terrasse, Fahrradraum, Niedrigenergiehaus, Toilette, Rollladen, Doppel- / Mehrfachverglasung, Kinderspielplatz, Kunststofffenster, kontrollierte Wohnraumlüftung

Grundrisse

Lageplan

Inhalt wird geladen
Preise
Gesamtmiete
697,68 €
Nettomiete
634,25 €
Gesamtmiete USt.
63,43 €
Provision
Gemäß Erstauftraggeberprinzip bezahlt der Abgeber die Provision.
Finanzierungsbeitrag
26.364,31 €
Finanzierungsbeitrag
26.364,31 €
Fakten
Objekttyp
Wohnung
Wohnfläche
56 m²
Terrassenfläche
11 m²
Kellerfläche
3 m²
Toiletten
1
Terrassen
1
Stockwerk
1. DG
Baujahr
2025
Gebäude
Neubau
Zustand
Erstbezug
Status
verfügbar
Energieeffizienz
Energieausweisart
Energiebedarfsausweis
HWB
20,40 kWh/(m²a)
HWB-Klasse
A
FGEE
0,64
FGEE-Klasse
A+
Claudia Koller

realbrokers Dienstleistungs GmbH & Co KG

Claudia Koller

Selbständiger Kooperationspartner