GEFÖRDERTE GENOSSENSCHAFTSWOHNUNG IN AMSTETTEN Miete mit Kaufoption / Wiedervermietung

Lage: 3300 Amstetten | Niederösterreich

Beschreibung

GEFÖRDERTE  GENOSSENSCHAFTSWOHNUNG  - MIETE MIT KAUFOPTION

 

In 3300 Amstetten/Allersdorf, Robert-Lieben-Straße 14 & 16 wurde eine Wohnhausanlage mit insgesamt 29 Wohnungen, aufgeteilt auf zwei Stiegen, in Niedrigenergiebauweise und kontrollierter Wohnraumlüftung mit Wärmerückgewinnung errichtet. Die Energiebereitstellung für Beheizung und Warmwassererzeugung erfolgt mittels biogener Fernwärme und zusätzlich mit Photovoltaikanlagen. Die Stiegenhäuser wurden barrierefrei ausgeführt und mit Personenaufzügen ausgestattet. Jede Wohneinheit erhält einen Balkon oder eine Terrasse. Den Wohnungen im Erdgeschoss sind Eigengärten 
samt Terrasse zugeteilt. Jeder Wohnung wird ein PKW-Stellplatz in der Tiefgarage zugeordnet und den Drei- und Vier-zimmerwohnungen zusätzlich ein PKW-Abstellplatz im Freien.

Auf Sonderwunsch und Kosten des Mieters kann jeder Stellplatz mit einer Ladesteckdose für ein Elektroauto ausgestattet werden.

 

Die Bezirksstadt Amstetten liegt im Mostviertel und gilt als das Verwaltung- und Wirtschaftszentrum des Alpenvorlandes und des Mostviertels. Durch die unmittelbare Verbindung zur Westautobahn, die gute Zug- und Busanbindung ist Amstetten gut und schnell erreichbar. Für die Gesundheit ist durch das Landesklinikum Mostviertel Amstetten und diverse ansässige Ärzte bestens gesorgt. Diverse Kindergärten und Schulen garantieren einen kurzen Schulweg für die Kinder. In der Freizeit kann man sich einem der vielen Vereine Amstettens anschließen, das Naturbad besuchen oder andere Sportmöglichkeiten in Anspruch nehmen. Die schönen Parkanlagen und der Naturlehrpfad laden zum Flanieren ein.

 

Diese Wohnhausanlage wurde vom Land Niederösterreich gefördert! Die Mieter müssen den Förderkriterien entsprechen und hier ihren Hauptwohnsitz begründen.

 

 

MIETE  MIT  KAUFOPTION

 

Mit Bezahlung des Finanzierungsbeitrages erwerben Sie das Optionsrecht zum Kauf der gemieteten Wohnung.

 

Folgende Wohneinheiten stehen im Moment zur Verfügung:

 

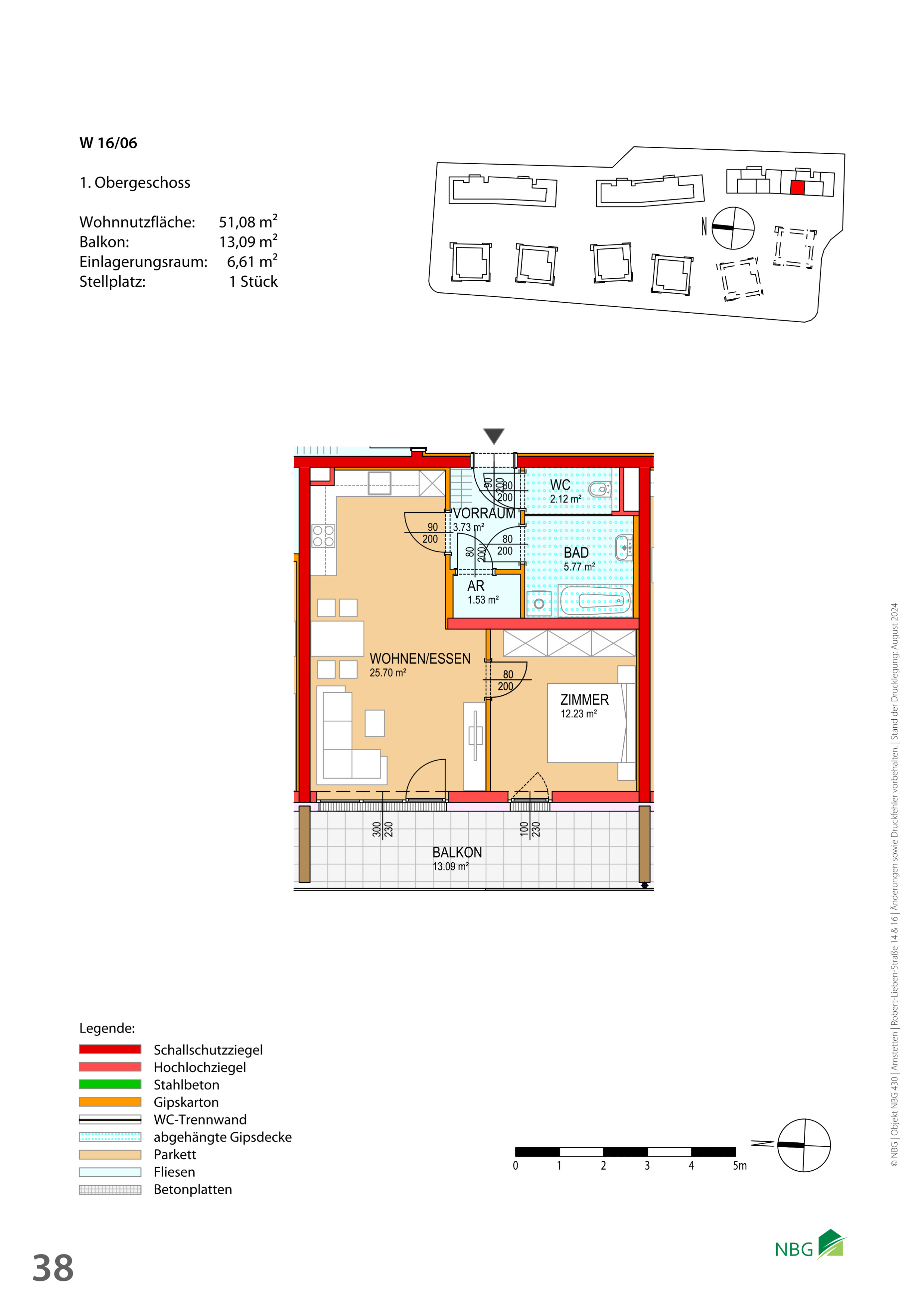
Top 16-06

Wohnfläche: 51,08 m²

Finanzierungsbeitrag: € 17.903,95

monatl. Miete: € 545,97

 

 

 

Die Kosten für den KFZ-Abstellplatz in der Tiefgarage sind in der monatlichen Miete bereits enthalten

 


Die Miete besteht gemäß § 14 WGG aus:

  •  Kapitaltilgung + Zinsen – Förderungsdarlehen
  •  Annuität (Kapitaltilgung+Zinsen abzüglich temporären Zuschuss) des zur Finanzierung der Wohnung beanspruchten progressiven Hypothekardarlehens oder Eigenmitteleinsatz einer gemeinnützigen Bauvereinigung
  •  Annuität (Kapitaltilgung+Zinsen) nicht geförderten Hypothekardarlehen
  •  Baurechtszins im Falle der Einräumung eines Baurechts, Zins für die zur Verfügungstellung des Baugrundstückes
  •  Erhaltungs- und Verbesserungsbeitrag, der für Erhaltungs- und Verbesserungsarbeiten an der Wohnungsanlage ein gehoben wird
  •  Rücklage 2% der vorstehend angeführten Entgeltbestandteile
  •  Umsatzsteuer von der Miete und von 1% des Finanzierungsbeitrages pro Jahr (Verwohnung)

 

In den Mietkosten sind Betriebskosten, Erhaltungs-und Verbesserungsbeitrag, Verwaltungskosten und Ust. enthalten. Energiekosten, wie Strom, Heizung und Warmwasser wird direkt mit den Betreibern abgerechnet.

 

Betriebskosten (Akonto)
Die Gemeinnützige Bauvereinigung wird vorerst in der Funktion als Liegenschaftseigentümerin (Bauberechtigte) und Verwalterin die mit der Liegenschaft verbundenen Betriebskostenaufwendungen pro Kalenderjahr im Vorhinein schätzen und in monatlichen Teilbeträgen zur Vorschreibung bringen. Zu den Betriebskostenaufwendungen gehören insbesondere:

  •  Öffentliche Abgaben (Kanal-, Müll-, Wassergebühr, Grundsteuer)
  •  Versicherungsaufwand (Feuer-, Haftpflicht-, Leitungswasser- u. Sturmschadenversicherung jeweils zum Neuwert) 
  •  allgemeine Stromkosten (Stiegenhaus, Keller, Außenbeleuchtung)
  •  Kosten der Betreuung und Erhaltung der allgemeinen Außenanlagen (z. B. Kinderspielplätze, Grünflächen, Müllplätze u.dgl.)
  •  Rauchfangkehrergebühr
  •  gegebenenfalls Kosten einer Liftanlage etc.
  •  Im Betriebskostenakonto sind die Kosten einer Hausbetreuung (Stiegenhausreinigung, Winterdienst, Grünflächenpflege) nicht berücksichtigt. Je nach Beauftragung dieser Arbeiten (eine oder mehrere Personen, gegebenenfalls auch eine Firma) sind diese Kosten variabel.

 

 

Wohnzuschuss (abhängig vom Familieneinkommen) möglich.

 

Unsere Angaben erfolgen aufgrund der Informationen und Unterlagen, welche uns vom Abgeber oder dessen Beauftragten zur Verfügung gestellt wurden und sind ohne Gewähr.

 

Für Rückfragen und Besichtigung stehe ich Ihnen unter der Tel. Nr. 0664 / 621 20 58  selbstverständlich gerne zur Verfügung.

 

Ihre Immobilienträume.

Unser Ziel!

www.realbrokers.at

 

 

 

Wir weisen darauf hin, dass zwischen dem Vermittler und dem zu vermittelnden Dritten ein familiäres oder wirtschaftliches Naheverhältnis besteht.

Der Immobilienmakler erklärt, dass er – entgegen dem in der Immobilienwirtschaft üblichen Geschäftsgebrauch des Doppelmaklers – einseitig nur für den Vermieter tätig ist.

Downloads

Lagepläne

Plan 0

Fakten

Objektnummer:
16579
Objekttyp:
Wohnung
Balkon:
1
Balkonfläche:
13,09 m²
Kellerfläche:
6,61 m²
Wohnfläche:
51,08 m²
Zimmer:
2
Badezimmer:
1
Toilette:
1
Stockwerk:
1. Etage
Baujahr:
2025
Neubau:
Ja
Zustand:
Neuwertig
Verfügbarkeit:
Verfügbar

Preisdetails

Nettomiete:
496,34 €
Bruttomiete:
496,34 €
Gesamtmiete:
545,97 €
Provision:
Gemäß Erstauftraggeberprinzip bezahlt der Abgeber die Provision. BMM
Monatliche Kosten USt.:
49,63 €
Miete Ust.:
49,63 €

Energieeffizienz

HWB:
17 kWh/(m²*a)
Klasse HWB:
A
fGEE:
0.53
Klasse fGEE:
A++
Energieausweisart:
Energiebedarfsausweis

Ansprechpartner

Claudia Koller

Selbständiger Kooperationspartner

Anfrage
Max. 500 Zeichen
Ich habe die Datenschutzvereinbarung gelesen und verstanden, und ich stimme der Verarbeitung meiner persönlichen Daten wie darin beschrieben zu. *