Kopfzeile

Geförderte Genossenschaftswohnung in Reinsberg - BEGLEITETES WOHNEN

Wohnung zur Miete in Reinsberg (3264) / Objektnummer: 16039

Wohnung zur Miete in Reinsberg (3264) 566,43 €

2 Zimmer

1 Badezimmer

52 m² Wohnfläche

22 m² Außenfläche

rollstuhlgerechtAufzugTerrasseDuscheRolllädenFahrradraumTiefgarageStellplatzZentralheizungFußbodenheizungKellerflächeFliesenKabel-TV

GEFÖRDERTE  GENOSSENSCHAFTSWOHNUNG  - BEGLEITETES WOHNEN

 

In 3264 Reinsberg, Reinsberg 14a, wird ein Wohnhaus mit 24 Wohnungen (Wohnungsgrößen ca. 48 – 82 m²), wobei neun Wohnungen (Wohnungsgrößen ca. 48 – 60 m²) in der Wohnform „begleitetes Wohnen“ errichtet werden. Ebenso werden

32 PKW-Abstellplätze in der eingeschossigen Tiefgarage errichtet, wobei jeder Wohnung zumindest ein Stellplatz zugeordnet wird.

Die Gesamtanlage wird in Niedrigenergiebauweise samt kontrollierter Wohnraumlüftung mit Wärmerückgewinnung errichtet. Die Energiebereitstellung erfolgt über eine biogene Fernwärmeanlage die durch die Bioenergie NÖ betrieben wird. Weiteres wird auf dem Dach des Gebäudes eine Photovoltaikanlage mit einer Summenleistung von ca. 18,0 kWp aufgestellt, diese dient vorrangig zur Abdeckung des Allgemeinstromeigenbedarfs. Überschusserzeugung wird ins Stromnetz eingespeist.

Jeder Wohnung sind Freiflächen in Form von Balkon, Loggia oder Terrasse zugeordnet. Die Erdgeschosswohnungen verfügen teilweise über zugeteilte Gartenflächen. Alle Wohnungen können mittels Personenaufzugs vom Keller- bis ins Dachgeschoss barrierefrei erreicht werden. Der den Wohnungen zugeordnete Einlagerungsraum befindet sich im Kellergeschoss. Kinderwagen- und Fahrradabstellräume sind im Erdgeschoss situiert.

Ein Kleinkinderspielplatz mit Kommunikationszone wird auf der Liegenschaft errichtet. Für gemeinschaftliche Aktivitäten wird im Erdgeschoss ein Gemeinschaftsraum vorgesehen.

Eine garantierte Kaufmöglichkeit besteht bei den Wohnungen ausgenommen jene Wohnungen die in der Wohnform „begleitetes Wohnen“ (Top 01-09) errichtet werden.

 

Diese Wohnhausanlage wurde vom Land Niederösterreich gefördert! Die Mieter müssen den Förderkriterien entsprechen und hier ihren Hauptwohnsitz begründen.

 

Die Übergabe der Wohnungen erfolgt voraussichtlich am 30.06.2026

 

BEGLEITETES WOHNEN

 

Die Wohnform „Begleitetes Wohnen“ soll insbesondere Menschen mit Behinderung und Menschen, die altersbedingt Einschränkungen in Kauf nehmen müssen, eine selbstständige Lebensführung ermöglichen. Dieses Modell entspricht dem bisherigen Modell „Betreutes Wohnen“, beinhaltet ein verpflichtetes Grundbetreuungspaket (Organisation der Betreuung obliegt der Gemeinde, kann von ehrenamtlichen oder sozialen Einrichtungen erbracht werden), findet in einem barrierefreien Gebäude statt, es gibt einen Gemeinschaftsraum für die Bewohnerinnen und Bewohner und die Wohnungsgrößen liegen zwischen 45 m² und 65 m².

 

Gemäß den NÖ Wohnbauförderungsrichtlinien 2019 in der gültigen Fassung weisen wir ausdrücklich darauf hin, dass für den Abschluss eines Nutzungsvertrages für eine der „begleiteten Wohnungen“ der Abschluss eines Basispakets für die Begleitung vorausgesetzt wird

 

Begleitungsgrundpaket 


Die Gemeinde Reinsberg verpflichtet sich zur Erbringung folgender Leistungen: 


- Wöchentlicher persönlicher Kontakt mit den Mietern der begleiteten Wohnungen 
- Unterstützung bei der Organisation kleinerer Reparaturen (kostenpflichtig) 
- Monatliche Gemeinschaftsaktivitäten 
- Information über Freizeit- und Seniorenangebote 
- Kontaktaufnahme mit Ärzten bei Bedarf 
- Unterstützung bei Behördenwegen 
- Organisation ehrenamtlicher Krankenbesuche 
- Beratung und Organisation eines Notrufsystems (kostenpflichtig) 
- Hilfe bei Organisation von Zusatzdiensten (Reinigung, Pflege etc.) 
- Vermittlung von Übergangs-, Tages- und Kurzzeitpflege 


Diese Leistungen richten sich ausschließlich an die Bewohner der als „Begleitetes Wohnen“ ausgewiesenen 9 
Wohnungen. Das Ausmaß beträgt im Monat zumindest 2 Std./Wohneinheit und ist für Personen mit 
Hauptwohnsitz in Reinsberg kostenlos.

 

 

Folgende Wohneinheiten stehen noch zur Verfügung:

 

Top 1-02

Wohnfläche 48,96 m²

Finanzierungsbeitrag: € 4.160,00

monatl. Miete: € 544,66

 

Top 1-03

Wohnfläche 49,09 m²

Finanzierungsbeitrag: € 4.170,00

monatl. Miete: € 543,97

 

Top 1-04

Wohnfläche 47,64 m²

Finanzierungsbeitrag: € 4.050,00

monatl. Miete: € 510,23

 

Top 1-05

Wohnfläche 50,86 m²

Finanzierungsbeitrag: € 4.320,00

monatl. Miete: € 534,66

 

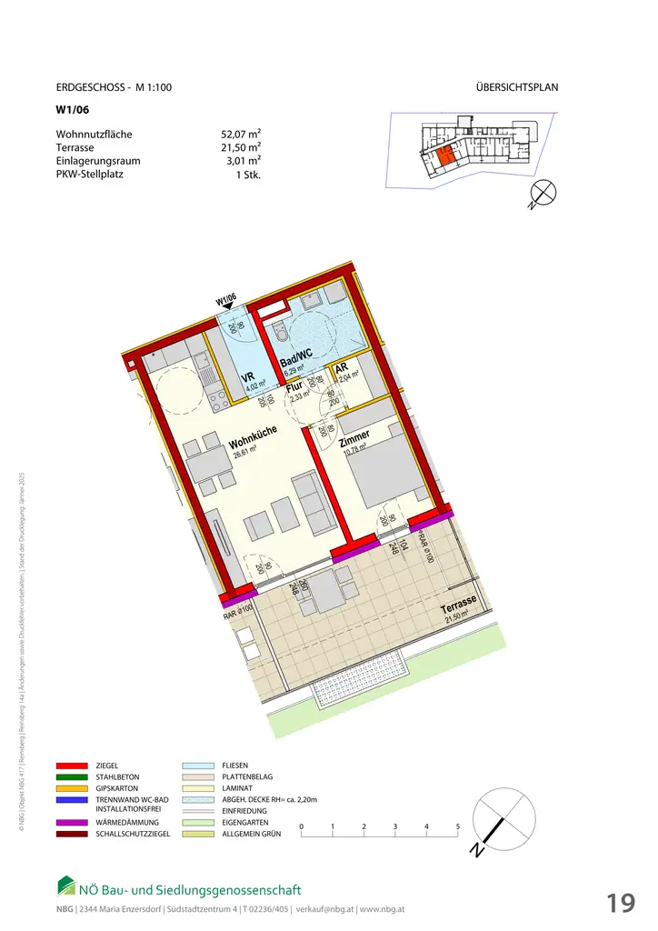
Top 1-06

Wohnfläche 52,07 m²

Finanzierungsbeitrag: € 4.420,00

monatl. Miete: € 566,43

 

Top 1-07

Wohnfläche 56,24 m²

Finanzierungsbeitrag: € 4.780,00

monatl. Miete: € 585,24

 

Top 1-08

Wohnfläche 54,14 m²

Eigengarten: 34,00 m²

Finanzierungsbeitrag: € 4.600,00

monatl. Miete: € 612,53

 

 

Für den KFZ-Abstellplatz in der Tiefgarage werden  € 40,00 zur Miete hinzugerechnet.

 


Die Miete besteht gemäß § 14 WGG aus:

  •  Kapitaltilgung + Zinsen – Förderungsdarlehen
  •  Annuität (Kapitaltilgung+Zinsen abzüglich temporären Zuschuss) des zur Finanzierung der Wohnung beanspruchten progressiven Hypothekardarlehens oder Eigenmitteleinsatz einer gemeinnützigen Bauvereinigung
  •  Annuität (Kapitaltilgung+Zinsen) nicht geförderten Hypothekardarlehen
  •  Baurechtszins im Falle der Einräumung eines Baurechts, Zins für die zur Verfügungstellung des Baugrundstückes
  •  Erhaltungs- und Verbesserungsbeitrag, der für Erhaltungs- und Verbesserungsarbeiten an der Wohnungsanlage ein gehoben wird
  •  Rücklage 2% der vorstehend angeführten Entgeltbestandteile
  •  Umsatzsteuer von der Miete und von 1% des Finanzierungsbeitrages pro Jahr (Verwohnung)

 

In den Mietkosten sind Betriebskosten, Erhaltungs-und Verbesserungsbeitrag, Verwaltungskosten und Ust. enthalten. Energiekosten, wie Strom, Heizung und Warmwasser wird direkt mit den Betreibern abgerechnet.

 

Betriebskosten (Akonto)
Die Gemeinnützige Bauvereinigung wird vorerst in der Funktion als Liegenschaftseigentümerin (Bauberechtigte) und Verwalterin die mit der Liegenschaft verbundenen Betriebskostenaufwendungen pro Kalenderjahr im Vorhinein schätzen und in monatlichen Teilbeträgen zur Vorschreibung bringen. Zu den Betriebskostenaufwendungen gehören insbesondere:

  •  Öffentliche Abgaben (Kanal-, Müll-, Wassergebühr, Grundsteuer)
  •  Versicherungsaufwand (Feuer-, Haftpflicht-, Leitungswasser- u. Sturmschadenversicherung jeweils zum Neuwert) 
  •  allgemeine Stromkosten (Stiegenhaus, Keller, Außenbeleuchtung)
  •  Kosten der Betreuung und Erhaltung der allgemeinen Außenanlagen (z. B. Kinderspielplätze, Grünflächen, Müllplätze u.dgl.)
  •  Rauchfangkehrergebühr
  •  gegebenenfalls Kosten einer Liftanlage etc.
  •  Im Betriebskostenakonto sind die Kosten einer Hausbetreuung (Stiegenhausreinigung, Winterdienst, Grünflächenpflege) nicht berücksichtigt. Je nach Beauftragung dieser Arbeiten (eine oder mehrere Personen, gegebenenfalls auch eine Firma) sind diese Kosten variabel.

 

 

Wohnzuschuss (abhängig vom Familieneinkommen) möglich.

 

Unsere Angaben erfolgen aufgrund der Informationen und Unterlagen, welche uns vom Abgeber oder dessen Beauftragten zur Verfügung gestellt wurden und sind ohne Gewähr.

 

Für Rückfragen und Besichtigung stehe ich Ihnen unter der Tel. Nr. 0664 / 621 20 58  selbstverständlich gerne zur Verfügung.

 

Ihre Immobilienträume.

Unser Ziel!

www.realbrokers.at

 

 

 

Wir weisen darauf hin, dass zwischen dem Vermittler und dem zu vermittelnden Dritten ein familiäres oder wirtschaftliches Naheverhältnis besteht.

Der Immobilienmakler erklärt, dass er – entgegen dem in der Immobilienwirtschaft üblichen Geschäftsgebrauch des Doppelmaklers – einseitig nur für den Vermieter tätig ist.

Ausstattung

Fliesen, Laminat, Fußbodenheizung, Zentralheizung, Personenaufzug, Dusche, Kabel / Satelliten-TV, Tiefgarage, Fernwärme, Nordwestbalkon / -terrasse, Fahrradraum, Seniorengerecht, Rollstuhlgerecht, Rollladen, Massiv, Doppel- / Mehrfachverglasung, Kinderspielplatz, Bad mit WC, kontrollierte Wohnraumlüftung

Grundrisse

Lageplan

Inhalt wird geladen
Preise
Gesamtmiete
566,43 €
Nettomiete
514,94 €
Gesamtmiete USt.
51,49 €
Provision
Gemäß Erstauftraggeberprinzip bezahlt der Abgeber die Provision.
Finanzierungsbeitrag
4.420,00 €
Finanzierungsbeitrag
4.420,00 €
Fakten
Objekttyp
Wohnung
Wohnfläche
52 m²
Terrassenfläche
22 m²
Kellerfläche
3 m²
Toiletten
1
Terrassen
1
Stockwerk
EG
Baujahr
2025
Gebäude
Neubau
Zustand
neuwertig
Status
verfügbar
Energieeffizienz
Energieausweisart
Energiebedarfsausweis
HWB
19,40 kWh/(m²a)
HWB-Klasse
A
FGEE
0,54
FGEE-Klasse
A++
Claudia Koller

realbrokers Dienstleistungs GmbH & Co KG

Claudia Koller

Selbständiger Kooperationspartner