Kopfzeile

GEFÖRDERTE GENOSSENSCHAFTSWOHNUNG IN STÖSSING / TAG DER OFFENEN TÜR AM 21.03.2026 von 10 bis 14 Uhr

Wohnung zur Miete in Stössing (3073) / Objektnummer: 10764

Wohnung zur Miete in Stössing (3073) 787,82 €

3 Zimmer

1 Badezimmer

76 m² Wohnfläche

9 m² Außenfläche

BalkonBadewanneRolllädenFahrradraumCarportStellplatzFernheizungKellerflächeFliesenParkettKabel-TV

GEFÖRDERTE  GENOSSENSCHAFTS-WOHNUNG -  MIETE MIT KAUFRECHT / INDIVIDUELLE FINANZIERUNG

 

 

Ein Teil des Finanzierungsbeitrages kann gerne gestundet werden!!!

50 % des Finanzierungsbeitrages bei Abschluss des Mietvertrages - Restbetrag kann für 3 Jahre mit 1,00% p. a. gestundet werden.

 

In 3073 Stössing wurde eine Wohnhausanlage in Niedrigenergiebauweise mit kontrollierter Wohnraumlüftung errichtet. Es entstanden insgesamt 16 Wohnungen, die auf 2 Stiegen zu je 8 Wohnungen aufgeteilt wurden. Das Untergeschoß der Wohnhausanlage ist in das Gelände eingeschnitten und bietet Platz für die überdeckten PKW-Stellplätze und die erforderlichen Nebenräume (Einlagerungsräume, Trockenräume, Fahrradabstellräume). Jeder Wohnung ist ein PKW-Stellplatz im Carportbereich zugeordnet.

Die Beheizung der gesamten Wohnhausanlage erfolgt über Fernwärme. Jeder Wohneinheit sind Freiflächen in Form von Balkon oder Terrasse zugeordnet.

Der Müllraum wird bei Stiege 2 untergebracht, der Kleinkinderspielplatz wird ebenfalls bei Stiege 2 an der östlichen Grundstücksgrenze angeordnet. Garantierte Kaufmöglichkeit.

 

Die Gemeinde Stössing liegt im östlichen Mostviertel. Mit dem PKW ist St. Pölten in ca. 30 Minuten und Wien in ca. 45 Minuten erreichbar. Es gibt auch die Möglichkeit mit öffentlichen Verkehrsmitteln nach Böheimkirchen oder St. Pölten zu gelangen.

Stössing weist weiters eine Vielzahl von Bildungs- und Freizeitmöglichkeiten auf. Ebenso laden die schönen Wander- und Radwege zu Ausflügen in die Natur ein.

 

Diese Wohnhausanlage wurde vom Land Niederösterreich gefördert! Die Mieter müssen den Förderkriterien entsprechen und hier ihren Hauptwohnsitz begründen.

 

KAUFOPTION:      Finanzierungsbeitrag - Miete

                               Zuerst Miete - auf Wunsch nach 10 Jahren Eigentum!

 

Mit Bezahlung des Finanzierungsbeitrages erwerben Sie das Optionsrecht zum Kauf der gemieteten Wohnung.

 

Folgende Wohneinheiten stehen zur Verfügung:

 

Top 1-6     sofort beziehbar

Wohnfläche:   76,78 m²

Finanzierungsbeitrag:   € 16.775,00

Miete:   €   795,13

 

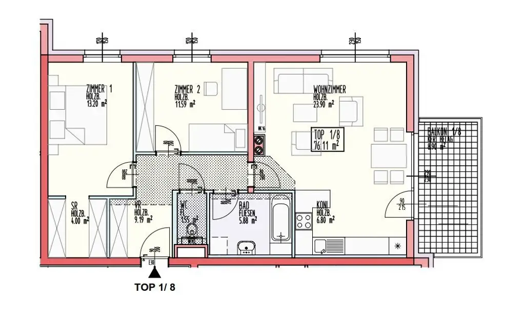
Top 1-8     sofort beziehbar

Wohnfläche:   76,11 m²

Finanzierungsbeitrag:   € 17.344,00

Miete:   €   787,82

 

Top 2-8    sofort beziehbar 

Wohnfläche:   75,35 m²

Finanzierungsbeitrag:   € 16.861,00

Miete:    € 779,87

 

 

 

In den Mietkosten sind Betriebskosten, Erhaltungs-und Verbesserungsbeitrag, Verwaltungskosten und Ust. enthalten. Energiekosten, wie Strom, Heizung und Warmwasser wird direkt mit den Betreibern abgerechnet.

Betriebskosten:  Öffentliche Abgaben (Kanal-, Müll-, Wassergebühr, Grundsteuer) Versicherungsaufwand (Feuer-, Haftpflicht-, Leitungswasser- u. Sturmschadenversicherung jeweils zum Neuwert) allgemeine Stromkosten (Stiegenhaus, Keller, Außenbeleuchtung) Kosten der Betreuung und Erhaltung der allgemeinen Außenanlagen (z. B. Kinderspielplätze, Grünflächen, Müllplätze und dgl.) Rauchfangkehrergebühr gegebenenfalls Kosten einer Liftanlage etc. Im Betriebskostenakonto sind die Kosten einer Hausbetreuung (Stiegenhausreinigung, Winterdienst, Grünflächenpflege) nicht berücksichtigt. Je nach Beauftragung dieser Arbeiten (eine oder mehrere Personen, gegebenenfalls auch eine Firma) sind diese Kosten variabel

 

Wohnzuschuss (abhängig vom Familieneinkommen) möglich.

           

Die Wohnungen werden mit einer kontrollierten Wohnraumlüftung mit Wärmerückgewinnung ausgestattet. Die Luftverteilung erfolgt über Blechkanäle und wird in den Wohnräumen eingebracht. Mit der aus der Abluft gewonnenen Wärme wird die Zuluft erwärmt. Die Abluft erfolgt in WC, Küche und Bad sodass eine separate Entlüftung der Sanitärräume nicht notwendig ist.

 

Unsere Angaben erfolgen aufgrund der Informationen und Unterlagen, welche uns vom Abgeber oder dessen Beauftragten zur Verfügung gestellt wurden und sind ohne Gewähr.

 

Die Kosten der Vermittlung trägt der Abgeber, sodass für den Mieter keine Vermittlungskosten entstehen.

Wir weisen darauf hin, dass zwischen dem Vermittler und dem zu vermittelnden Dritten ein familiäres oder wirtschaftliches Naheverhältnis besteht.

Der Immobilienmakler erklärt, dass er – entgegen dem in der Immobilienwirtschaft üblichen Geschäftsgebrauch des Doppelmaklers – einseitig nur für den Vermieter tätig ist.

Ausstattung

Fliesen, Parkett, Fernwärme, Kamin, Ostbalkon / -terrasse, Badewanne, Kabel / Satelliten-TV, Carport, Wasch- / Trockenraum, Fernwärme, Fahrradraum, Niedrigenergiehaus, Toilette, Rollladen, Kunststofffenster, kontrollierte Wohnraumlüftung

Lage und Verkehrsanbindung

Nähe St. Pölten

Grundrisse

Lageplan

Inhalt wird geladen
Preise
Gesamtmiete
787,82 €
Nettomiete
716,20 €
Gesamtmiete USt.
71,62 €
Provision
Gemäß Erstauftraggeberprinzip bezahlt der Abgeber die Provision.
Finanzierungsbeitrag
17.344,00 €
Finanzierungsbeitrag
17.344,00 €
Fakten
Objekttyp
Wohnung
Wohnfläche
76 m²
Balkonfläche
9 m²
Kellerfläche
5 m²
Toiletten
1
Balkone
1
Stockwerk
1. Etage
Baujahr
2013
Gebäude
Neubau
Zustand
neuwertig
Status
verfügbar
Energieeffizienz
Energieausweisart
Energiebedarfsausweis
HWB
25,29 kWh/(m²a)
HWB-Klasse
B
Claudia Koller

realbrokers Dienstleistungs GmbH & Co KG

Claudia Koller

Selbständiger Kooperationspartner