Kopfzeile

neu — Schönes modernes Haus bei Pottendorf!

Haus zum Kauf in Siegersdorf (2486) / Objektnummer: 16750

Haus zum Kauf in Siegersdorf (2486) 465.000 €

4 Zimmer

1 Badezimmer

130 m² Wohnfläche

150 m² Nutzfläche

17 m² Außenfläche

262 m² Grundfläche

TerrasseWohnkücheDuscheBadewanneGäste-WCRolllädenCarportStellplatzFußbodenheizung

Zum Verkauf steht dieses moderne, Einzelhaus in Siegersdorf Gemeinde Pottendorf (Bezirk Baden).

Beschreibung:

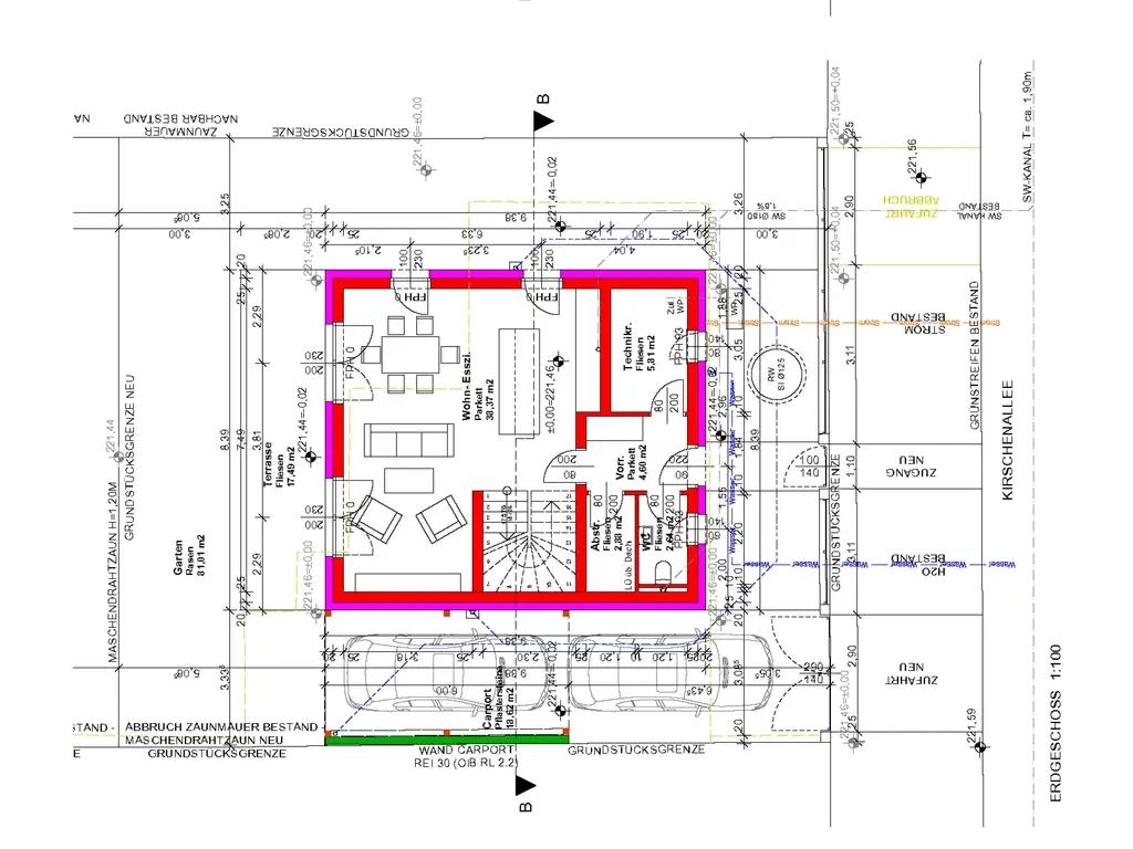
Dieses hochwertige Haus wurde in Ziegelmassivbauweise errichtet und erstreckt sich über ein Grundstück von ca. 262 m². Die Wohnfläche von ca. 130 m² verteilt sich wie folgt:

Erdgeschoss:

Vorraum (4,60 m²)

Abstellraum (2,0 m²)

Technikraum (5,81 m²)

Wohnzimmer mit offener Küche (38,37 m²)

Bad/WC (3,52 m²)

Obergeschoss:

Gang (3,68 m²)

Bad/WC (9,50 m²)

Elternschlafzimmer (13,70 m²)

Kinderzimmer 1 (14,71 m²)

Kinderzimmer 2 (12,72m²)

Diese durchdachte Wohneinheit bietet alles, was für ein modernes und entspanntes Wohngefühl in den eigenen vier Wänden benötigt wird.

Zur Ausstattung belagsfertig PLUS gehören:

  • Ziegelmassivbauweise mit Baumeisterqualität
  • 25er Ziegel mit 20 cm EPS-Vollwärmeisolierung
  • Einfriedung
  • Moderne Heizung und Warmwasseraufbereitung mittels Luftwärmepumpe
  • Kunststofffenster mit Alu Clips Anthrazit, 3-fach verglast, mit Außenrollos
  • Carport
  • Weiße Außenfassade
  • 2 frostfeste Wasserhähne bei Carport, Garten und Terrasse
  • Vorbereitung für Wallbox unter dem Carport für Elektroautos
  • Verputzte und weiß ausgemalte Innenwände
  • Vorbereitung für EDV- und Sat-Anschluss in allen Wohnräumen
  • Blitzschutzanlage
  • Eingebauter Schornstein mit Möglichkeit eines Einbaukamins
  • Stiegenbeleuchtung
  • Müllnischen

Eine großzügige Terrasse rundet dieses Angebot ab.

Das Haus wird als belagsfertig angeboten und bietet ausreichend Spielraum um Böden, Fliesen usw. nach persönlichen Vorlieben einzubringen.

In unmittelbarer Nähe in Pottendorf finden Sie eine gute Infrastruktur mit Schulen, Kindergärten, Einkaufsmöglichkeiten usw. Darüber hinaus gibt es zahlreiche Freizeitangebote, die jedes Herz höherschlagen lassen, wie Wandern, Radfahren, Reiten, Tennis, Fußball, Golf. Die Region ist durch den Verkehrsbund Ost sehr gut an das öffentlichen Verkehrsnetz angebunden. Zugverbindung nach Wien. Der Bahnhoff Pottendorf-Landegg verfügt über eine Park & Ride Anlage. Auch mit dem Auto ist man über die A3 rasch in Wien und Eisenstadt.

Für weitere Informationen oder zur Vereinbarung eines unverbindlichen Besichtigungstermin stehe ich gerne zur Verfügung.

Ausstattung

Fußbodenheizung, Wohnküche / offene Küche, Bad mit Fenster, Badewanne, Dusche, Carport, Luftwärmepumpe, Südostbalkon / -terrasse, Rollladen, Gäste-WC, Flachdach, Massiv, Doppel- / Mehrfachverglasung, Kunststofffenster, Bad mit WC, Ziegel

Grundrisse

Lageplan

Inhalt wird geladen
Preise
Kaufpreis
465.000,00 €
Vermittlungsprovision
Provision
3% des Kaufpreises zzgl. 20% USt.
Fakten
Objekttyp
Haus
Wohnfläche
130 m²
Terrassenfläche
17 m²
Nutzfläche
150 m²
Grundfläche
262 m²
Toiletten
2
Terrassen
1
Baujahr
2025
Gebäude
Neubau
Status
verfügbar
Energieeffizienz
Energieausweisart
Energiebedarfsausweis
HWB
42,80 kWh/(m²a)
HWB-Klasse
B
Gültig bis
10.10.2023
Flora Peichler

realbrokers Dienstleistungs GmbH & Co KG

Flora Peichler

Selbständiger Kooperationspartner